Cumberland County
Building Summary

Data last updated on: 12/3/2025     Ownership current as of: 11/20/2025     Tax Year: 2025
REID 0456630500000

PIN # 0456-63-0500

Location Address Property Description
3252 SUNNYSIDE SCHOOL RD 2.36 ACS BULLARD & HALL LD SR 2000
   
Property Owner Owner's Mailing Address
CHURCH, JOHN MICHAEL JR;CHURCH, HEATHER MARIE
3252 SUNNYSIDE SCHOOL RD
FAYETTEVILLE NC 28312
Parcel
Buildings
Misc Improvements
Land
Deeds
Documents
Notes
Sales
Sales Comparison
Photos
Building Location Address
3252 SUNNYSIDE SCHOOL RD
Building Description
R1-SINGLE-FAMILY-RES
Card   of  1
Bldg Type R1-SINGLE-FAMILY-RES
Units 0
Living Area (SQFT) 1175
Number of Stories 1.00
Style 000002-STYLE
Foundation G-PIERS-W/CNTFWL
Frame CONSTANT
Exterior 11-BRICK-VENEER
Const Type
Heating M-07&S-01
Air Cond AC-Y
Plumbing Baths (Full):   1
Baths (Half):   0
Extra Fixtures:   0
Total Plumbing Fixtures:   3 
Bedrooms 3
Floor 11-CARPET-COMB
Roof Cover 03-COMP SHINGLE
Roof Type 02-GABLE
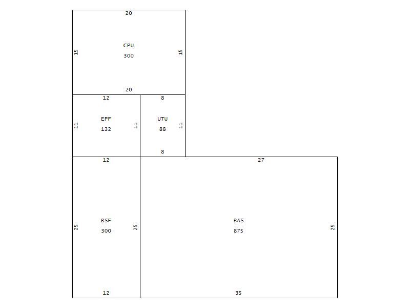
Main Body (SQFT) 875
Year Built 1965
Additions 4
Effective Year 1965
Remodeled 0
Interior Adj.
Other Features
Building Total & Improvement Details

Grade 350 100%
Percentage Complete 100
Total Adjusted Replacement Cost New $142,195
Physical Depreciation (% Bad) A 37%
Depreciated Value $89,583
Economic Depreciation (% Bad) 0
Functional Depreciation (% Bad) 0
Total Depreciated Value $89,583
Market Area Factor 1.00
Building Value $89,583
Misc Improvements Value $1,162
Total Improvement Value $90,745

Assessed Land Value $33,586
   
Assessed Total Value $195,200



Addition Summary 
StoryTypeCodeArea
1.00 UTILITY UNFIN UTU 88
1.00 ENCL PORCH FIN EPF 132
1.00 BASE SEMI FIN BSF 300
1.00 CARPORT UNFIN CPU 300
 
Other Improvements 
UnitsDescriptionItemCodeYear% BadValue
4x5 DIMENSIONS STOOP 1983 65 109
12x10 DIMENSIONS UTILITY FRAME 1983 65 1053
 


Building Sketch
Photograph
Building Sketch Building Photo
(Click sketch for bigger image)