Cumberland County
Building Summary

Data last updated on: 1/25/2026     Ownership current as of: 1/20/2026     Tax Year: 2026
REID 0466851020000

PIN # 0466-85-1020

Location Address Property Description
4461 SIDS MILL RD 1/2 ACRES & RES W G CARTER LD
   
Property Owner Owner's Mailing Address
CARLISLE, JOHN;JACKSON, LESLIE
4461 SIDS MILL RD
FAYETTEVILLE NC 28312
Parcel
Buildings
Misc Improvements
Land
Deeds
Documents
Notes
Sales
Sales Comparison
Photos
Building Location Address
4461 SIDS MILL RD
Building Description
R3-MANUF-DOUBLEWIDE
Card   of  1
Bldg Type R3-MANUF-DOUBLEWIDE
Units 0
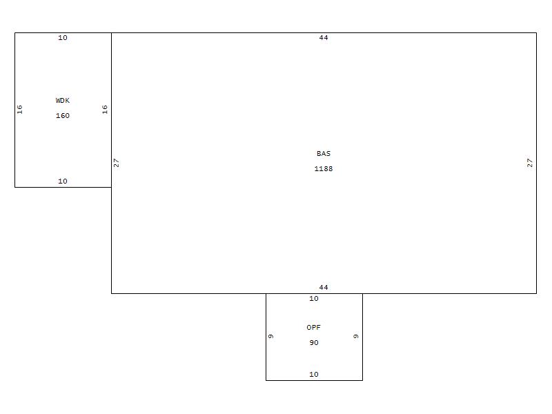
Living Area (SQFT) 1188
Number of Stories 1.00
Style 000002-STYLE
Foundation P-PIERS
Frame CONSTANT
Exterior 04-VINYL-SIDING
Const Type
Heating M-07&S-01
Air Cond AC-Y
Plumbing Baths (Full):   2
Baths (Half):   0
Extra Fixtures:   0
Total Plumbing Fixtures:   6 
Bedrooms 3
Floor 07-SHEET-VINYL
Roof Cover 03-COMP SHINGLE
Roof Type 02-GABLE
Main Body (SQFT) 1188
Year Built 1993
Additions 2
Effective Year 1993
Remodeled 0
Interior Adj.
Other Features
Building Total & Improvement Details

Grade D250 81.9%
Percentage Complete 100
Total Adjusted Replacement Cost New $77,576
Physical Depreciation (% Bad) A 52%
Depreciated Value $37,236
Economic Depreciation (% Bad) 0
Functional Depreciation (% Bad) 0
Total Depreciated Value $37,236
Market Area Factor 1.00
Building Value $37,236
Misc Improvements Value
Total Improvement Value $37,236

Assessed Land Value $7,069
   
Assessed Total Value $139,700



Addition Summary 
StoryTypeCodeArea
1.00 WOOD DECK WDK 160
1.00 OPEN PORCH FIN OPF 90
 
Other Improvements 
 


Building Sketch
Photograph
Building Sketch Building Photo
(Click sketch for bigger image)