Cumberland County
Building Summary

Data last updated on: 12/3/2025     Ownership current as of: 11/20/2025     Tax Year: 2025
REID 0467429575000

PIN # 0467-42-9575

Location Address Property Description
3920 JACKIE ST PINE ACRES LO:4 SE:01 PL:0044-0069
   
Property Owner Owner's Mailing Address
DINSMORE, ROBERT M
400 KAREN ST
FAYETTEVILLE NC 28312
Parcel
Buildings
Misc Improvements
Land
Deeds
Documents
Notes
Sales
Sales Comparison
Photos
Building Location Address
3920 JACKIE ST
Building Description
R1-SINGLE-FAMILY-RES
Card   of  1
Bldg Type R1-SINGLE-FAMILY-RES
Units 0
Living Area (SQFT) 1400
Number of Stories 1.00
Style 000002-STYLE
Foundation G-PIERS-W/CNTFWL
Frame CONSTANT
Exterior 05-DELUX-WOOD-SIDING
Const Type
Heating M-07&S-01
Air Cond AC-Y
Plumbing Baths (Full):   2
Baths (Half):   0
Extra Fixtures:   1
Total Plumbing Fixtures:   7 
Bedrooms 3
Floor 11-CARPET-COMB
Roof Cover 03-COMP SHINGLE
Roof Type 02-GABLE
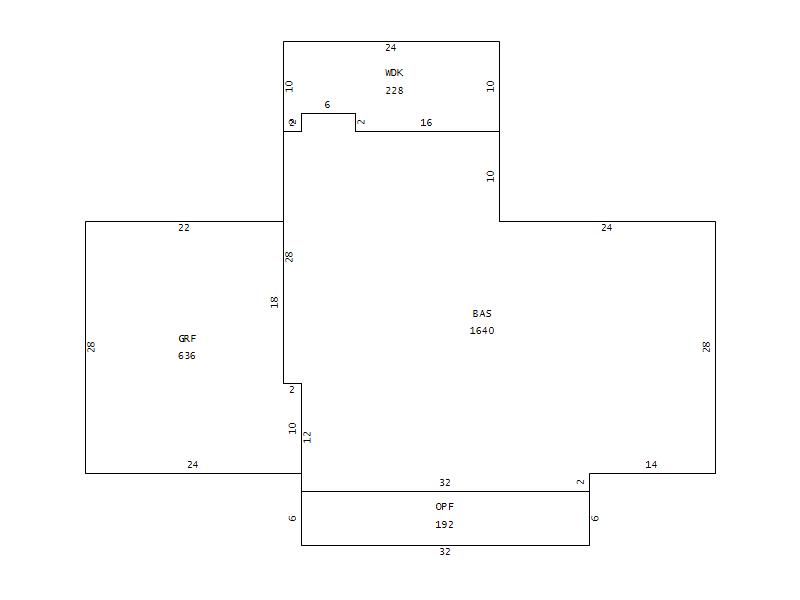
Main Body (SQFT) 1400
Year Built 1992
Additions 3
Effective Year 1992
Remodeled 0
Interior Adj.
Other Features
Building Total & Improvement Details

Grade 350 100%
Percentage Complete 100
Total Adjusted Replacement Cost New $191,561
Physical Depreciation (% Bad) A 25%
Depreciated Value $143,671
Economic Depreciation (% Bad) 0
Functional Depreciation (% Bad) 0
Total Depreciated Value $143,671
Market Area Factor 1.00
Building Value $143,671
Misc Improvements Value
Total Improvement Value $143,671

Assessed Land Value $36,250
   
Assessed Total Value $246,100



Addition Summary 
StoryTypeCodeArea
1.00 WOOD DECK WDK 228
1.00 OPEN PORCH FIN OPF 192
1.00 GARAGE FINISH GRF 636
 
Other Improvements 
 


Building Sketch
Photograph
Building Sketch Building Photo
(Click sketch for bigger image)