Cumberland County
Building Summary

Data last updated on: 1/25/2026     Ownership current as of: 1/20/2026     Tax Year: 2026
REID 0468311648000

PIN # 0468-31-1648

Location Address Property Description
3301 ST MARGARETS PL CARL B WHITE JR LO:2 SE:01 PL:0060-0105
   
Property Owner Owner's Mailing Address
LAMBRIGHT, EDWARD
3301 ST MARGARETS PL
FAYETTEVILLE NC 28312
Parcel
Buildings
Misc Improvements
Land
Deeds
Documents
Notes
Sales
Sales Comparison
Photos
Building Location Address
3301 ST MARGARETS PL
Building Description
R3-MANUF-DOUBLEWIDE
Card   of  1
Bldg Type R3-MANUF-DOUBLEWIDE
Units 0
Living Area (SQFT) 1458
Number of Stories 1.00
Style 000002-STYLE
Foundation P-PIERS
Frame CONSTANT
Exterior 04-VINYL-SIDING
Const Type
Heating M-07&S-01
Air Cond AC-Y
Plumbing Baths (Full):   2
Baths (Half):   0
Extra Fixtures:   0
Total Plumbing Fixtures:   6 
Bedrooms 3
Floor 11-CARPET-COMB
Roof Cover 03-COMP SHINGLE
Roof Type 02-GABLE
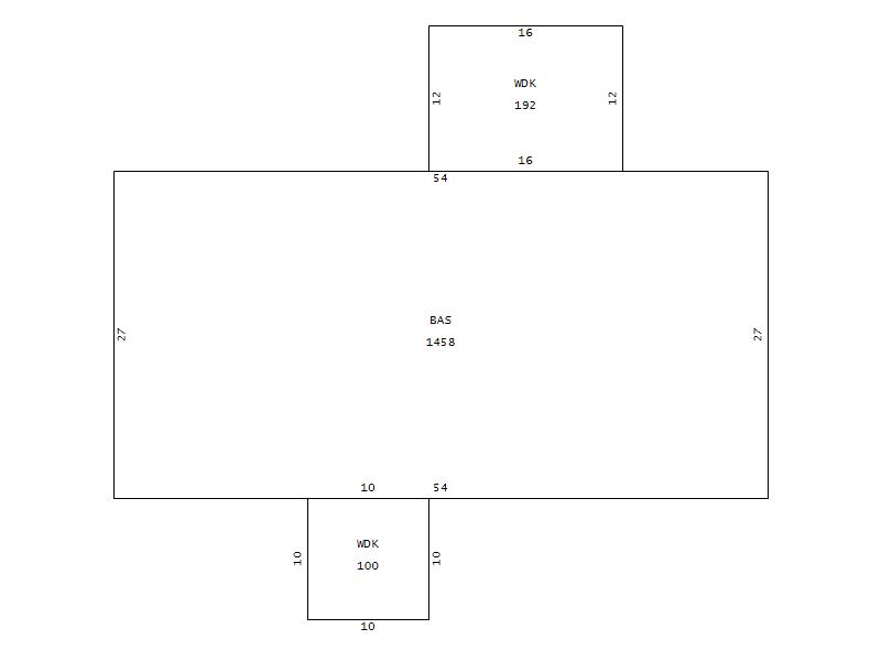
Main Body (SQFT) 1458
Year Built 1987
Additions 1
Effective Year 1993
Remodeled 0
Interior Adj.
Other Features
Building Total & Improvement Details

Grade D250 81.9%
Percentage Complete 100
Total Adjusted Replacement Cost New $91,431
Physical Depreciation (% Bad) A 52%
Depreciated Value $43,887
Economic Depreciation (% Bad) 0
Functional Depreciation (% Bad) 0
Total Depreciated Value $43,887
Market Area Factor 1.00
Building Value $43,887
Misc Improvements Value $6,205
Total Improvement Value $50,092

Assessed Land Value $21,750
   
Assessed Total Value $166,900



Addition Summary 
StoryTypeCodeArea
1.00 WOOD DECK WDK 192
 
Other Improvements 
UnitsDescriptionItemCodeYear% BadValue
12x16 DIMENSIONS UTILITY FRAME 1998 65 1684
10x10 DIMENSIONS UTILITY METAL 2013 47 343
16x12 DIMENSIONS DECK WOOD 2024 11 4178
 


Building Sketch
Photograph
Building Sketch Building Photo
(Click sketch for bigger image)