Cumberland County
Building Summary

Data last updated on: 1/1/2026     Ownership current as of: 12/30/2025     Tax Year: 2026
REID 0469530929000

PIN # 0469-53-0929

Location Address Property Description
2805 EASTOVER NORTH DR EASTOVER NORTH LO:1 SE:02 PL:0136-0116
   
Property Owner Owner's Mailing Address
QUINN, NICHOLAS L;JOHNSON, MORGAN L
2805 EASTOVER N DR
EASTOVER NC 28312

Value subject to change, property assessment under review

Parcel
Buildings
Misc Improvements
Land
Deeds
Documents
Notes
Sales
Photos
Building Location Address
2805 EASTOVER NORTH DR
Building Description
R1-SINGLE-FAMILY-RES
Card   of  1
Bldg Type R1-SINGLE-FAMILY-RES
Units 0
Living Area (SQFT) 2824
Number of Stories 2.00
Style 000002-STYLE
Foundation S-SLAB
Frame CONSTANT
Exterior 04-VINYL-SIDING
Const Type
Heating M-07&S-01
Air Cond AC-Y
Plumbing Baths (Full):   3
Baths (Half):   0
Extra Fixtures:   3
Total Plumbing Fixtures:   12 
Bedrooms 3
Roof Cover 03-COMP SHINGLE
Roof Type 05-HIP
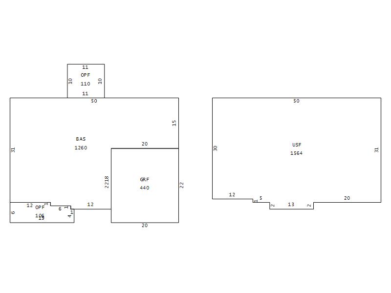
Main Body (SQFT) 1260
Year Built 2015
Additions 4
Effective Year 2015
Remodeled 0
Interior Adj.
Other Features
Building Total & Improvement Details

Grade 435 117%
Percentage Complete 100
Total Adjusted Replacement Cost New
Physical Depreciation (% Bad) A 9%
Depreciated Value
Economic Depreciation (% Bad) 0
Functional Depreciation (% Bad) 0
Total Depreciated Value
Market Area Factor 1.00
Building Value
Misc Improvements Value
Total Improvement Value

Assessed Land Value
   
Assessed Total Value



Addition Summary 
StoryTypeCodeArea
1.00 OPEN PORCH FIN OPF 110
1.00 OPEN PORCH FIN OPF 106
1.00 GARAGE FINISH GRF 440
1.00 UPPER STY FIN USF 1564
 
Other Improvements 
 


Building Sketch
Photograph
Building Sketch Building Photo
(Click sketch for bigger image)