Cumberland County
Building Summary

Data last updated on: 1/1/2026     Ownership current as of: 12/30/2025     Tax Year: 2026
REID 0469547884000

PIN # 0469-54-7884

Location Address Property Description
2904 EASTOVER NORTH DR EASTOVER NORTH CORR LO:53 PH:2 SE:1 PL:0140-0125
   
Property Owner Owner's Mailing Address
BALACH, KALEIGH;BALACH, BRADLEY
2904 EASTOVER NORTH DR
EASTOVER NC 28312
Parcel
Buildings
Misc Improvements
Land
Deeds
Documents
Notes
Sales
Sales Comparison
Photos
Building Location Address
2904 EASTOVER NORTH DR
Building Description
R1-SINGLE-FAMILY-RES
Card   of  1
Bldg Type R1-SINGLE-FAMILY-RES
Units 0
Living Area (SQFT) 2240
Number of Stories 2.00
Style 000088-STYLE
Foundation S-SLAB
Frame CONSTANT
Exterior 04-VINYL-SIDING
Const Type
Heating M-07&S-01
Air Cond AC-Y
Plumbing Baths (Full):   2
Baths (Half):   1
Extra Fixtures:   3
Total Plumbing Fixtures:   11 
Bedrooms 4
Roof Cover 03-COMP SHINGLE
Roof Type 02-GABLE
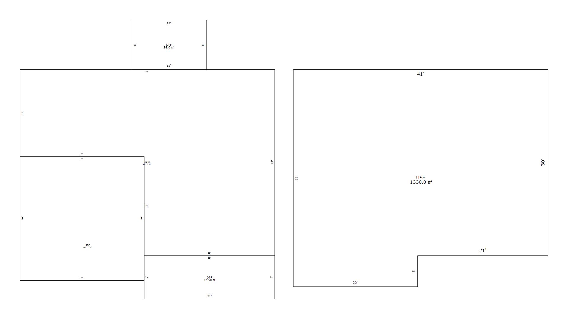
Main Body (SQFT) 910
Year Built 2020
Additions 4
Effective Year 2020
Remodeled 0
Interior Adj.
Other Features
Building Total & Improvement Details

Grade 435 117%
Percentage Complete 100
Total Adjusted Replacement Cost New $288,884
Physical Depreciation (% Bad) G 4%
Depreciated Value $277,329
Economic Depreciation (% Bad) 0
Functional Depreciation (% Bad) 0
Total Depreciated Value $277,329
Market Area Factor 1.00
Building Value $277,329
Misc Improvements Value
Total Improvement Value $277,329

Assessed Land Value $50,000
   
Assessed Total Value $329,500



Addition Summary 
StoryTypeCodeArea
1.00 GARAGE FINISH GRF 400
1.00 OPEN PORCH FIN OPF 147
1.00 OPEN PORCH FIN OPF 96
1.00 UPPER STY FIN USF 1330
 
Other Improvements 
 


Building Sketch
Photograph
Building Sketch Building Photo
(Click sketch for bigger image)