Cumberland County
Building Summary

Data last updated on: 1/30/2026     Ownership current as of: 1/20/2026     Tax Year: 2026
REID 0469641755000

PIN # 0469-64-1755

Location Address Property Description
2928 RAYBURN DR EASTOVER NORTH CORR LO:63 PH:2 SE:01 PL:0140-0125
   
Property Owner Owner's Mailing Address
PATEL, ANKITA;PATEL, KEYURBHAI P
2928 RAYBURN DRIVE
EASTOVER NC 28312
Parcel
Buildings
Misc Improvements
Land
Deeds
Documents
Notes
Sales
Sales Comparison
Photos
Building Location Address
2928 RAYBURN DR
Building Description
R1-SINGLE-FAMILY-RES
Card   of  1
Bldg Type R1-SINGLE-FAMILY-RES
Units 0
Living Area (SQFT) 3454
Number of Stories 2.00
Style 000088-STYLE
Foundation S-SLAB
Frame CONSTANT
Exterior 04-VINYL-SIDING
Const Type
Heating
Air Cond AC-Y
Plumbing Baths (Full):   4
Baths (Half):   0
Extra Fixtures:   3
Total Plumbing Fixtures:   15 
Bedrooms 5
Roof Cover 03-COMP SHINGLE
Roof Type 02-GABLE
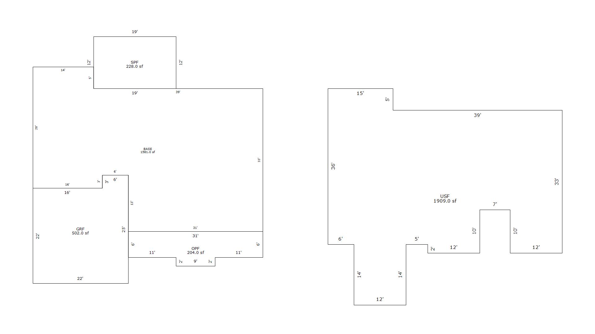
Main Body (SQFT) 1581
Year Built 2019
Additions 4
Effective Year 2019
Remodeled 0
Interior Adj.
Other Features
Building Total & Improvement Details

Grade 435 117%
Percentage Complete 100
Total Adjusted Replacement Cost New $439,065
Physical Depreciation (% Bad) G 4%
Depreciated Value $421,502
Economic Depreciation (% Bad) 0
Functional Depreciation (% Bad) 0
Total Depreciated Value $421,502
Market Area Factor 1.00
Building Value $421,502
Misc Improvements Value $4,285
Total Improvement Value $425,787

Assessed Land Value $50,000
   
Assessed Total Value $470,300



Addition Summary 
StoryTypeCodeArea
1.00 SCREEN PORCH F SPF 228
1.00 OPEN PORCH FIN OPF 204
1.00 GARAGE FINISH GRF 502
1.00 UPPER STY FIN USF 1873
 
Other Improvements 
UnitsDescriptionItemCodeYear% BadValue
15X12 DIMENSIONS CONCRETE PATIO 2019 27 1008
12x10 DIMENSIONS UTILITY FRAME 2022 15 3277
 


Building Sketch
Photograph
Building Sketch Building Photo
(Click sketch for bigger image)