Cumberland County
Building Summary

Data last updated on: 10/17/2025     Ownership current as of: 10/14/2025     Tax Year: 2025
REID 0477097141000

PIN # 0477-09-7141

Location Address Property Description
4305 SANDEROSA RD HUMPHRIES & LEE LO:3A SE:01 PL:0121-0126
   
Property Owner Owner's Mailing Address
TER LOUW, JOHN MARK;TER LOUW, TAMARA LEIGH
4305 SANDEROSA RD
FAYETTEVILLE NC 28312
Parcel
Buildings
Misc Improvements
Land
Deeds
Documents
Notes
Sales
Sales Comparison
Photos
Building Location Address
4305 SANDEROSA RD
Building Description
R1-SINGLE-FAMILY-RES
Card   of  1
Bldg Type R1-SINGLE-FAMILY-RES
Units 0
Living Area (SQFT) 2668
Number of Stories 1.50
Style 000002-STYLE
Foundation G-PIERS-W/CNTFWL
Frame CONSTANT
Exterior 11-BRICK-VENEER
Const Type
Heating M-07&S-01
Air Cond AC-Y
Plumbing Baths (Full):   3
Baths (Half):   0
Extra Fixtures:   2
Total Plumbing Fixtures:   11 
Bedrooms 5
Roof Cover 03-COMP SHINGLE
Roof Type 02-GABLE
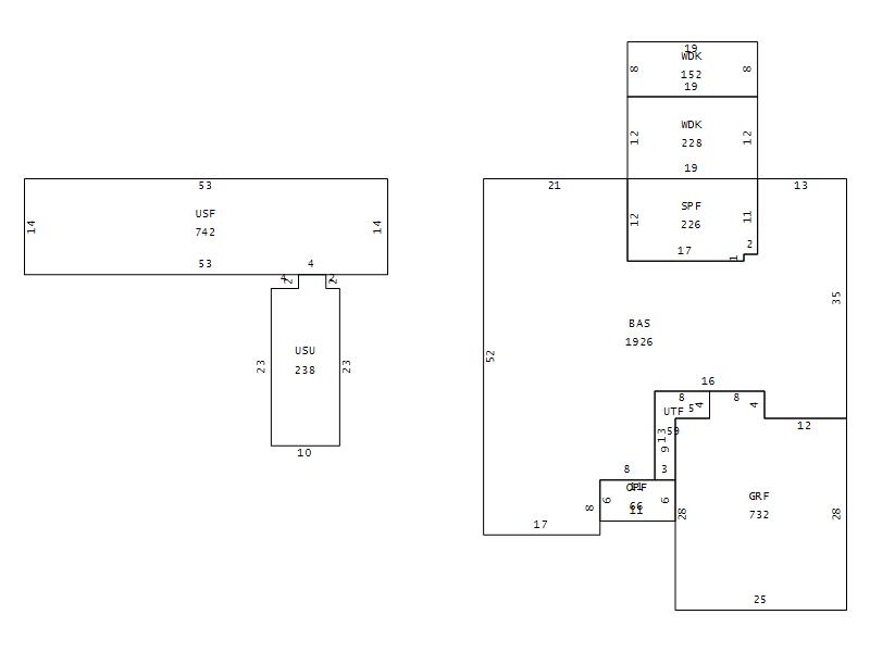
Main Body (SQFT) 1926
Year Built 2008
Additions 8
Effective Year 2008
Remodeled 0
Interior Adj.
Other Features
Building Total & Improvement Details

Grade 450 126%
Percentage Complete 100
Total Adjusted Replacement Cost New $442,832
Physical Depreciation (% Bad) A 13%
Depreciated Value $385,264
Economic Depreciation (% Bad) 0
Functional Depreciation (% Bad) 0
Total Depreciated Value $385,264
Market Area Factor 1.00
Building Value $385,264
Misc Improvements Value
Total Improvement Value $385,264

Assessed Land Value $43,500
   
Assessed Total Value $458,400



Addition Summary 
StoryTypeCodeArea
1.00 SCREEN PORCH F SPF 226
1.00 GARAGE FINISH GRF 732
1.00 UTILITY FIN UTF 59
1.00 OPEN PORCH FIN OPF 66
1.00 WOOD DECK WDK 228
1.00 WOOD DECK WDK 152
1.00 UPPER STY FIN USF 742
1.00 UPPER STY UNFI USU 238
 
Other Improvements 
 


Building Sketch
Photograph
Building Sketch Building Photo
(Click sketch for bigger image)