Cumberland County
Building Summary

Data last updated on: 3/13/2026     Ownership current as of: 3/2/2026     Tax Year: 2026
REID 0477141532000

PIN # 0477-14-1532

Location Address Property Description
4645 HUMMINGBIRD PL DONALD & BEATRICE BLAIR LO:2 SE:01 PL:0130-0058
   
Property Owner Owner's Mailing Address
SNYDER, ERIK;SNYDER, KENDALL
4645 HUMMINGBIRD PL
FAYETTEVILLE NC 28312
Parcel
Buildings
Misc Improvements
Land
Deeds
Documents
Notes
Sales
Sales Comparison
Photos
Building Location Address
4645 HUMMINGBIRD PL
Building Description
RM-MODULAR-HOME
Card   of  1
Bldg Type RM-MODULAR-HOME
Units 0
Living Area (SQFT) 2108
Number of Stories 1.00
Style 000002-STYLE
Foundation G-PIERS-W/CNTFWL
Frame CONSTANT
Exterior 04-VINYL-SIDING
Const Type
Heating M-07&S-01
Air Cond AC-Y
Plumbing Baths (Full):   2
Baths (Half):   0
Extra Fixtures:   2
Total Plumbing Fixtures:   8 
Bedrooms 4
Roof Cover 03-COMP SHINGLE
Roof Type 02-GABLE
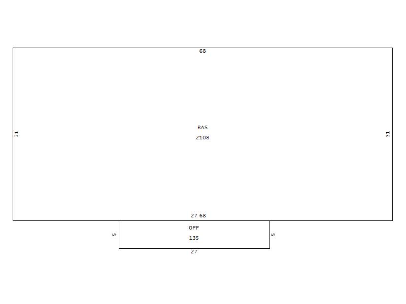
Main Body (SQFT) 2108
Year Built 2013
Additions 1
Effective Year 2013
Remodeled 0
Interior Adj.
Other Features
Building Total & Improvement Details

Grade 350 100%
Percentage Complete 100
Total Adjusted Replacement Cost New $214,000
Physical Depreciation (% Bad) E 8%
Depreciated Value $196,880
Economic Depreciation (% Bad) 0
Functional Depreciation (% Bad) 0
Total Depreciated Value $196,880
Market Area Factor 1.00
Building Value $196,880
Misc Improvements Value $321
Total Improvement Value $197,201

Assessed Land Value $23,200
   
Assessed Total Value $303,600



Addition Summary 
StoryTypeCodeArea
1.00 OPEN PORCH FIN OPF 135
 
Other Improvements 
UnitsDescriptionItemCodeYear% BadValue
10x8 DIMENSIONS UTILITY FRAME 2000 75 321
 


Building Sketch
Photograph
Building Sketch Building Photo
(Click sketch for bigger image)