Cumberland County
Building Summary

Data last updated on: 10/17/2025     Ownership current as of: 10/14/2025     Tax Year: 2025
REID 0477229566000

PIN # 0477-22-9566

Location Address Property Description
4891 HUMMINGBIRD PL CURTISS J C MARG PROP LO:2 SE:01 PL:0067-0040
   
Property Owner Owner's Mailing Address
MERRILL, RYAN DEAN;MERRILL, LACY
4891 HUMMINGBIRD PL
FAYETTEVILLE NC 28312
Parcel
Buildings
Misc Improvements
Land
Deeds
Documents
Notes
Sales
Sales Comparison
Photos
Building Location Address
4891 HUMMINGBIRD PL
Building Description
R1-SINGLE-FAMILY-RES
Card   of  1
Bldg Type R1-SINGLE-FAMILY-RES
Units 0
Living Area (SQFT) 3260
Number of Stories 1.50
Style 000002-STYLE
Foundation G-PIERS-W/CNTFWL
Frame CONSTANT
Exterior 11-BRICK-VENEER
Const Type
Heating M-07&S-01
Air Cond AC-Y
Plumbing Baths (Full):   4
Baths (Half):   1
Extra Fixtures:   2
Total Plumbing Fixtures:   16 
Bedrooms 4
Floor 11-CARPET-COMB
Roof Cover 03-COMP SHINGLE
Roof Type 02-GABLE
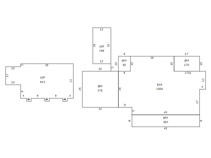
Main Body (SQFT) 1859
Year Built 1992
Additions 6
Effective Year 1992
Remodeled 0
Interior Adj.
Other Features
Building Total & Improvement Details

Grade 435 117%
Percentage Complete 100
Total Adjusted Replacement Cost New $444,889
Physical Depreciation (% Bad) A 21%
Depreciated Value $351,462
Economic Depreciation (% Bad) 0
Functional Depreciation (% Bad) 0
Total Depreciated Value $351,462
Market Area Factor 1.00
Building Value $351,462
Misc Improvements Value $27,025
Total Improvement Value $378,487

Assessed Land Value $59,494
   
Assessed Total Value $573,800



Addition Summary 
StoryTypeCodeArea
1.00 FLORIDA ROOM FLR 170
1.00 OPEN PORCH FIN OPF 360
1.00 GARAGE FINISH GRF 576
1.00 OPEN PORCH FIN OPF 80
1.00 UPPER STY FIN USF 288
1.00 UPPER STY FIN USF 943
 
Other Improvements 
UnitsDescriptionItemCodeYear% BadValue
28x32 DIMENSIONS GARAGE FRAME FINISHED W/HALF UPPER STORY UNFINISHE 1992 57 14387
14x32 DIMENSIONS SHELTER 1992 65 942
14x32 DIMENSIONS SHELTER 1992 65 942
54X20 DIMENSIONS BRICK PATIO 2012 50 12894
 


Building Sketch
Photograph
Building Sketch Building Photo
(Click sketch for bigger image)