Cumberland County
Building Summary

Data last updated on: 12/3/2025     Ownership current as of: 11/20/2025     Tax Year: 2025
REID 0477317423000

PIN # 0477-31-7423

Location Address Property Description
5023 HUMMINGBIRD PL COUNTRYWIDE LIQUIDATION CORP LO:1 SE:01 PL:0119-0042
   
Property Owner Owner's Mailing Address
DEWIL, WILLIAM LAWRENCE;DEWIL, MADISON LEIGH
5023 HUMMINGBIRD PL
FAYETTEVILLE NC 28312
Parcel
Buildings
Misc Improvements
Land
Deeds
Documents
Notes
Sales
Sales Comparison
Photos
Building Location Address
5023 HUMMINGBIRD PL
Building Description
R1-SINGLE-FAMILY-RES
Card   of  1
Bldg Type R1-SINGLE-FAMILY-RES
Units 0
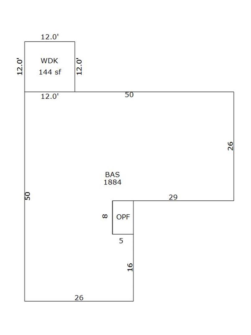
Living Area (SQFT) 1884
Number of Stories 1.00
Style 000002-STYLE
Foundation G-PIERS-W/CNTFWL
Frame CONSTANT
Exterior 22-CONCRETE-SIDING
Const Type
Heating M-07&S-01
Air Cond AC-Y
Plumbing Baths (Full):   2
Baths (Half):   0
Extra Fixtures:   1
Total Plumbing Fixtures:   7 
Bedrooms 4
Roof Cover 03-COMP SHINGLE
Roof Type 05-HIP
Main Body (SQFT) 1884
Year Built 2000
Additions 2
Effective Year 2000
Remodeled 0
Interior Adj.
Other Features
Building Total & Improvement Details

Grade 350 100%
Percentage Complete 100
Total Adjusted Replacement Cost New $207,135
Physical Depreciation (% Bad) A 21%
Depreciated Value $163,637
Economic Depreciation (% Bad) 0
Functional Depreciation (% Bad) 0
Total Depreciated Value $163,637
Market Area Factor 1.00
Building Value $163,637
Misc Improvements Value
Total Improvement Value $163,637

Assessed Land Value $29,300
   
Assessed Total Value $262,400



Addition Summary 
StoryTypeCodeArea
1.00 OPEN PORCH FIN OPF 40
1.00 WOOD DECK WDK 144
 
Other Improvements 
 


Building Sketch
Photograph
Building Sketch Building Photo
(Click sketch for bigger image)