Cumberland County
Building Summary

Data last updated on: 10/17/2025     Ownership current as of: 10/14/2025     Tax Year: 2025
REID 0478447710000

PIN # 0478-44-7710

Location Address Property Description
4829 MURPHY RD .46 ACRE GEDDIE LD 2600-17
   
Property Owner Owner's Mailing Address
CONWAY, SHERRY M
4829 MURPHY RD
FAYETTEVILLE NC 28312
Parcel
Buildings
Misc Improvements
Land
Deeds
Documents
Notes
Sales
Sales Comparison
Photos
Building Location Address
4829 MURPHY RD
Building Description
R1-SINGLE-FAMILY-RES
Card   of  1
Bldg Type R1-SINGLE-FAMILY-RES
Units 0
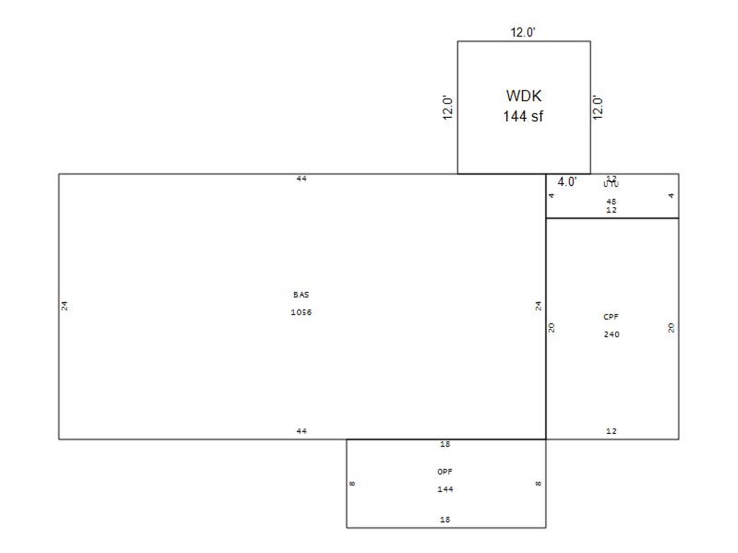
Living Area (SQFT) 1056
Number of Stories 1.00
Style 000002-STYLE
Foundation S-SLAB
Frame CONSTANT
Exterior 12-BRICK/WOOD
Const Type
Heating M-07&S-01
Air Cond AC-Y
Plumbing Baths (Full):   1
Baths (Half):   1
Extra Fixtures:   0
Total Plumbing Fixtures:   5 
Bedrooms 3
Floor 11-CARPET-COMB
Roof Cover 03-COMP SHINGLE
Roof Type 02-GABLE
Main Body (SQFT) 1056
Year Built 1977
Additions 4
Effective Year 1977
Remodeled 0
Interior Adj.
Other Features
Building Total & Improvement Details

Grade 350 100%
Percentage Complete 100
Total Adjusted Replacement Cost New $131,039
Physical Depreciation (% Bad) A 32%
Depreciated Value $89,107
Economic Depreciation (% Bad) 0
Functional Depreciation (% Bad) 0
Total Depreciated Value $89,107
Market Area Factor 1.00
Building Value $89,107
Misc Improvements Value $8,224
Total Improvement Value $97,331

Assessed Land Value $14,500
   
Assessed Total Value $183,200



Addition Summary 
StoryTypeCodeArea
1.00 CARPORT FINISH CPF 240
1.00 UTILITY UNFIN UTU 48
1.00 OPEN PORCH FIN OPF 144
1.00 WOOD DECK WDK 144
 
Other Improvements 
UnitsDescriptionItemCodeYear% BadValue
22x24 DIMENSIONS UTILITY FRAME WITH CONCRETE FLOOR 1983 65 5617
22x12 DIMENSIONS CARPORT UNFIN 2018 25 2607
 


Building Sketch
Photograph
Building Sketch Building Photo
(Click sketch for bigger image)