Cumberland County
Building Summary

Data last updated on: 1/28/2026     Ownership current as of: 1/20/2026     Tax Year: 2026
REID 0406623229000

PIN # 0406-62-3229

Location Address Property Description
1628 WINNABOW DR BEAVER CREEK NORTH LO:6 SE:03 PL:0083-0198
   
Property Owner Owner's Mailing Address
DEJESUS-RUIZ, NICHOLE D
1628 WINNABOW DRIVE
FAYETTEVILLE NC 28304

Value subject to change, property assessment under review

Parcel
Buildings
Misc Improvements
Land
Deeds
Documents
Notes
Sales
Photos
Building Location Address
1628 WINNABOW DR
Building Description
R1-SINGLE-FAMILY-RES
Card   of  1
Bldg Type R1-SINGLE-FAMILY-RES
Units 0
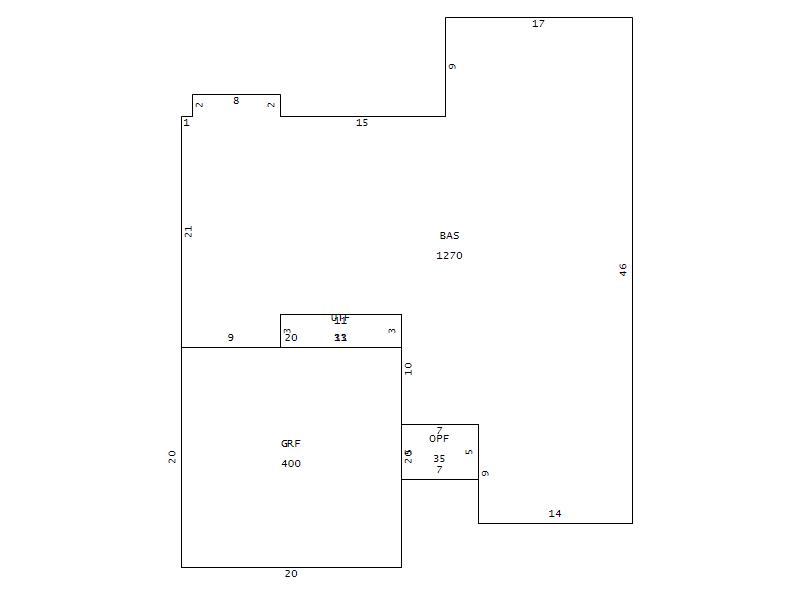
Living Area (SQFT) 1270
Number of Stories 1.00
Style 000002-STYLE
Foundation S-SLAB
Frame CONSTANT
Exterior 11-BRICK-VENEER
Const Type
Heating M-07&S-02
Air Cond AC-Y
Plumbing Baths (Full):   2
Baths (Half):   0
Extra Fixtures:   1
Total Plumbing Fixtures:   7 
Bedrooms 3
Floor 11-CARPET-COMB
Roof Cover 03-COMP SHINGLE
Roof Type 02-GABLE
Main Body (SQFT) 1270
Year Built 1993
Additions 3
Effective Year 1993
Remodeled 0
Interior Adj.
Other Features
Building Total & Improvement Details

Grade 350 100%
Percentage Complete 100
Total Adjusted Replacement Cost New
Physical Depreciation (% Bad) A 24%
Depreciated Value
Economic Depreciation (% Bad) 0
Functional Depreciation (% Bad) 0
Total Depreciated Value
Market Area Factor 1.00
Building Value
Misc Improvements Value
Total Improvement Value

Assessed Land Value
   
Assessed Total Value



Addition Summary 
StoryTypeCodeArea
1.00 OPEN PORCH FIN OPF 35
1.00 GARAGE FINISH GRF 400
1.00 UTILITY FIN UTF 33
 
Other Improvements 
UnitsDescriptionItemCodeYear% BadValue
10x12 DIMENSIONS CONCRETE PATIO 1993 65
12x12 DIMENSIONS DECK WOOD 2008 65
7x7 DIMENSIONS UTILITY FRAME 2012 40
 


Building Sketch
Photograph
Building Sketch Building Photo
(Click sketch for bigger image)