Cumberland County
Building Summary

Data last updated on: 1/28/2026     Ownership current as of: 1/20/2026     Tax Year: 2026
REID 0406625915000

PIN # 0406-62-5915

Location Address Property Description
1587 WINNABOW DR BEAVER CREEK NORTH LO:69 SE:03 PL:0083-0198
   
Property Owner Owner's Mailing Address
MCNULTY, BENJAMIN
227 WEST ST APT 1134
BROOKLYN NY 11222
Parcel
Buildings
Misc Improvements
Land
Deeds
Documents
Notes
Sales
Sales Comparison
Photos
Building Location Address
1587 WINNABOW DR
Building Description
R1-SINGLE-FAMILY-RES
Card   of  1
Bldg Type R1-SINGLE-FAMILY-RES
Units 0
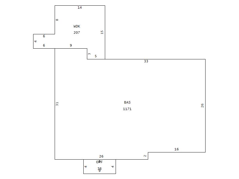
Living Area (SQFT) 1171
Number of Stories 1.00
Style 000002-STYLE
Foundation G-PIERS-W/CNTFWL
Frame CONSTANT
Exterior 03-MAS/ABST/OLD-WOOD
Const Type
Heating M-07&S-02
Air Cond AC-Y
Plumbing Baths (Full):   2
Baths (Half):   0
Extra Fixtures:   0
Total Plumbing Fixtures:   6 
Bedrooms 3
Floor 11-CARPET-COMB
Roof Cover 03-COMP SHINGLE
Roof Type 02-GABLE
Main Body (SQFT) 1171
Year Built 1993
Additions 2
Effective Year 1993
Remodeled 0
Interior Adj.
Other Features
Building Total & Improvement Details

Grade 350 100%
Percentage Complete 100
Total Adjusted Replacement Cost New $140,293
Physical Depreciation (% Bad) A 24%
Depreciated Value $106,623
Economic Depreciation (% Bad) 0
Functional Depreciation (% Bad) 0
Total Depreciated Value $106,623
Market Area Factor 1.00
Building Value $106,623
Misc Improvements Value
Total Improvement Value $106,623

Assessed Land Value $20,500
   
Assessed Total Value $198,900



Addition Summary 
StoryTypeCodeArea
1.00 OPEN PORCH FIN OPF 36
1.00 WOOD DECK WDK 207
 
Other Improvements 
 


Building Sketch
Photograph
Building Sketch Building Photo
(Click sketch for bigger image)