Cumberland County
Building Summary

Data last updated on: 10/17/2025     Ownership current as of: 10/14/2025     Tax Year: 2025
REID 0488023647000

PIN # 0488-02-3647

Location Address Property Description
5670 MURPHY RD WILLIAM & JO SUE DRAUGHON REV LO:2 SE:01 PL:0113-0032
   
Property Owner Owner's Mailing Address
JONES, JILLIAN CAROLINE;VILLANEUVA, ISAIAS
5670 MURPHY RD
STEDMAN NC 28391
Parcel
Buildings
Misc Improvements
Land
Deeds
Documents
Notes
Sales
Sales Comparison
Photos
Building Location Address
5670 MURPHY RD
Building Description
R1-SINGLE-FAMILY-RES
Card   of  1
Bldg Type R1-SINGLE-FAMILY-RES
Units 0
Living Area (SQFT) 2594
Number of Stories 1.50
Style 000002-STYLE
Foundation S-SLAB
Frame CONSTANT
Exterior 04-VINYL-SIDING
Const Type
Heating M-07&S-01
Air Cond AC-Y
Plumbing Baths (Full):   3
Baths (Half):   0
Extra Fixtures:   2
Total Plumbing Fixtures:   11 
Bedrooms 4
Roof Cover 03-COMP SHINGLE
Roof Type 02-GABLE
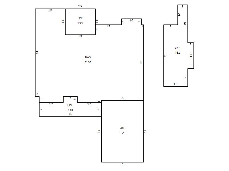
Main Body (SQFT) 2133
Year Built 2018
Additions 4
Effective Year 2018
Remodeled 0
Interior Adj.
Other Features
Building Total & Improvement Details

Grade 435 117%
Percentage Complete 100
Total Adjusted Replacement Cost New $337,970
Physical Depreciation (% Bad) A 6%
Depreciated Value $317,692
Economic Depreciation (% Bad) 0
Functional Depreciation (% Bad) 0
Total Depreciated Value $317,692
Market Area Factor 1.00
Building Value $317,692
Misc Improvements Value $773
Total Improvement Value $318,465

Assessed Land Value $43,500
   
Assessed Total Value $472,200



Addition Summary 
StoryTypeCodeArea
1.00 SCREEN PORCH F SPF 195
1.00 OPEN PORCH FIN OPF 238
1.00 GARAGE FINISH GRF 651
1.00 BONUS RM FINIS BRF 461
 
Other Improvements 
UnitsDescriptionItemCodeYear% BadValue
12x12 DIMENSIONS CONCRETE PATIO 2018 30 773
 


Building Sketch
Photograph
Building Sketch Building Photo
(Click sketch for bigger image)