Cumberland County
Building Summary

Data last updated on: 1/27/2026     Ownership current as of: 1/20/2026     Tax Year: 2026
REID 0491645869000

PIN # 0491-64-5869

Location Address Property Description
8185 TURNBULL RD HENRY BRUNSON LO:2 SE:01 PL:0118-0128
   
Property Owner Owner's Mailing Address
VANUS, MICHAEL J;VANUS, CHRISTINA M
8185 TURNBULL RD
FAYETTEVILLE NC 28312
Parcel
Buildings
Misc Improvements
Land
Deeds
Documents
Notes
Sales
Sales Comparison
Photos
Building Location Address
8185 TURNBULL RD
Building Description
R1-SINGLE-FAMILY-RES
Card   of  1
Bldg Type R1-SINGLE-FAMILY-RES
Units 0
Living Area (SQFT) 1056
Number of Stories 1.00
Style 000002-STYLE
Foundation G-PIERS-W/CNTFWL
Frame CONSTANT
Exterior 04-VINYL-SIDING
Const Type
Heating M-07&S-01
Air Cond AC-Y
Plumbing Baths (Full):   2
Baths (Half):   0
Extra Fixtures:   0
Total Plumbing Fixtures:   6 
Bedrooms 3
Roof Cover 03-COMP SHINGLE
Roof Type 05-HIP
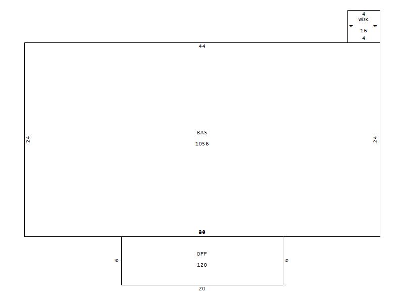
Main Body (SQFT) 1056
Year Built 2007
Additions 2
Effective Year 2007
Remodeled 0
Interior Adj.
Other Features
Building Total & Improvement Details

Grade 350 100%
Percentage Complete 100
Total Adjusted Replacement Cost New $122,035
Physical Depreciation (% Bad) A 18%
Depreciated Value $100,069
Economic Depreciation (% Bad) 0
Functional Depreciation (% Bad) 0
Total Depreciated Value $100,069
Market Area Factor 1.00
Building Value $100,069
Misc Improvements Value $1,458
Total Improvement Value $101,527

Assessed Land Value $27,188
   
Assessed Total Value $222,500



Addition Summary 
StoryTypeCodeArea
1.00 WOOD DECK WDK 16
1.00 OPEN PORCH FIN OPF 120
 
Other Improvements 
UnitsDescriptionItemCodeYear% BadValue
18X20 DIMENSIONS CARPORT UNFIN 2007 52 1458
 


Building Sketch
Photograph
Building Sketch Building Photo
(Click sketch for bigger image)