Cumberland County
Building Summary

Data last updated on: 10/17/2025     Ownership current as of: 10/14/2025     Tax Year: 2025
REID 0495872603000

PIN # 0495-87-2603

Location Address Property Description
113 ATWOOD TER PINEWOOD RECOMB LO:4 SE:01 PL:0101-0152
   
Property Owner Owner's Mailing Address
LACHANCE, FREDERICK G III;LACHANCE, DIXIE LORETTA
113 ATWOOD TER
STEDMAN NC 28391
Parcel
Buildings
Misc Improvements
Land
Deeds
Documents
Notes
Sales
Sales Comparison
Photos
Building Location Address
113 ATWOOD TER
Building Description
RL-RES-LOG-HOME
Card   of  1
Bldg Type RL-RES-LOG-HOME
Units 0
Living Area (SQFT) 1465
Number of Stories 1.00
Style 000002-STYLE
Foundation G-PIERS-W/CNTFWL
Frame CONSTANT
Exterior 21-LOGS
Const Type
Heating M-07&S-01
Air Cond AC-Y
Plumbing Baths (Full):   2
Baths (Half):   0
Extra Fixtures:   1
Total Plumbing Fixtures:   7 
Bedrooms 3
Floor 11-CARPET-COMB
Roof Cover 02-METAL ROOF
Roof Type 02-GABLE
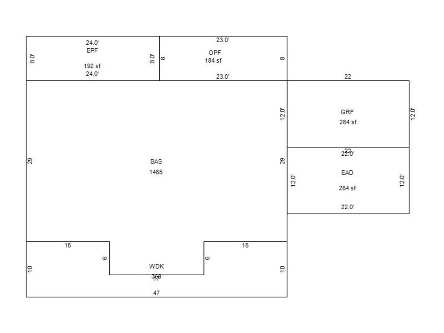
Main Body (SQFT) 1465
Year Built 2001
Additions 5
Effective Year 2001
Remodeled 0
Interior Adj.
Other Features
Building Total & Improvement Details

Grade 350 100%
Percentage Complete 100
Total Adjusted Replacement Cost New $228,105
Physical Depreciation (% Bad) A 21%
Depreciated Value $180,203
Economic Depreciation (% Bad) 0
Functional Depreciation (% Bad) 0
Total Depreciated Value $180,203
Market Area Factor 1.00
Building Value $180,203
Misc Improvements Value $4,345
Total Improvement Value $184,548

Assessed Land Value $36,250
   
Assessed Total Value $265,600



Addition Summary 
StoryTypeCodeArea
1.00 OPEN PORCH FIN OPF 184
1.00 GARAGE FINISH GRF 264
1.00 WOOD DECK WDK 368
1.00 ENCL PORCH FIN EPF 192
1.00 GRF/CPF CONVER EAD 264
 
Other Improvements 
UnitsDescriptionItemCodeYear% BadValue
8x10 DIMENSIONS UTILITY METAL 2008 65 181
16x18 DIMENSIONS UTILITY FRAME 2006 55 4164
 


Building Sketch
Photograph
Building Sketch Building Photo
(Click sketch for bigger image)