Cumberland County
Building Summary

Data last updated on: 1/19/2026     Ownership current as of: 1/7/2026     Tax Year: 2026
REID 0495975736000

PIN # 0495-97-5736

Location Address Property Description
8431 CLINTON RD 0.33 AC HORNE LD
   
Property Owner Owner's Mailing Address
BOCKS, HEATHER LEIGH
8431 CLINTON ROAD
STEDMAN NC 28391
Parcel
Buildings
Misc Improvements
Land
Deeds
Documents
Notes
Sales
Sales Comparison
Photos
Building Location Address
8431 CLINTON RD
Building Description
R1-SINGLE-FAMILY-RES
Card   of  1
Bldg Type R1-SINGLE-FAMILY-RES
Units 0
Living Area (SQFT) 1544
Number of Stories 1.00
Style 000002-STYLE
Foundation G-PIERS-W/CNTFWL
Frame CONSTANT
Exterior 11-BRICK-VENEER
Const Type
Heating M-07&S-01
Air Cond AC-Y
Plumbing Baths (Full):   2
Baths (Half):   0
Extra Fixtures:   2
Total Plumbing Fixtures:   8 
Bedrooms 3
Floor 11-CARPET-COMB
Roof Cover 03-COMP SHINGLE
Roof Type 02-GABLE
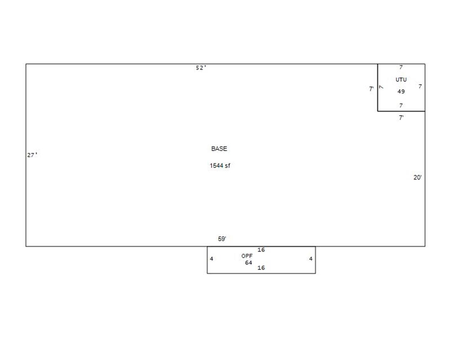
Main Body (SQFT) 1544
Year Built 1977
Additions 2
Effective Year 1991
Remodeled 0
Interior Adj.
Other Features
Building Total & Improvement Details

Grade 350 100%
Percentage Complete 100
Total Adjusted Replacement Cost New $177,961
Physical Depreciation (% Bad) A 25%
Depreciated Value $133,471
Economic Depreciation (% Bad) 0
Functional Depreciation (% Bad) 0
Total Depreciated Value $133,471
Market Area Factor 1.00
Building Value $133,471
Misc Improvements Value $805
Total Improvement Value $134,276

Assessed Land Value $13,050
   
Assessed Total Value $211,100



Addition Summary 
StoryTypeCodeArea
1.00 OPEN PORCH FIN OPF 64
1.00 UTILITY UNFIN UTU 49
 
Other Improvements 
UnitsDescriptionItemCodeYear% BadValue
25x12 DIMENSIONS CONCRETE PATIO 1977 65 805
 


Building Sketch
Photograph
Building Sketch Building Photo
(Click sketch for bigger image)