Cumberland County
Building Summary

Data last updated on: 3/12/2026     Ownership current as of: 3/2/2026     Tax Year: 2026
REID 0496934862000

PIN # 0496-93-4862

Location Address Property Description
1132 JOHN NUNNERY RD 2.63 ACS MCCALL LD
   
Property Owner Owner's Mailing Address
ODHAM, PATRICIA;POLK, MICHAEL
1132 JOHN NUNNERY ROAD
STEDMAN NC 28391

Value subject to change, property assessment under review

Parcel
Buildings
Misc Improvements
Land
Deeds
Documents
Notes
Sales
Photos
Building Location Address
1132 JOHN NUNNERY RD
Building Description
R1-SINGLE-FAMILY-RES
Card   of  1
Bldg Type R1-SINGLE-FAMILY-RES
Units 0
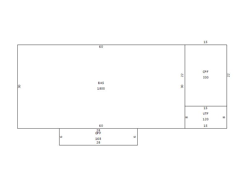
Living Area (SQFT) 1800
Number of Stories 1.00
Style 000002-STYLE
Foundation G-PIERS-W/CNTFWL
Frame CONSTANT
Exterior 11-BRICK-VENEER
Const Type
Heating M-07&S-01
Air Cond AC-Y
Plumbing Baths (Full):   2
Baths (Half):   0
Extra Fixtures:   0
Total Plumbing Fixtures:   6 
Bedrooms 3
Floor 11-CARPET-COMB
Roof Cover 03-COMP SHINGLE
Roof Type 02-GABLE
Main Body (SQFT) 1800
Year Built 1969
Additions 4
Effective Year 1969
Remodeled 0
Interior Adj.
Other Features
Building Total & Improvement Details

Grade 370 108%
Percentage Complete 100
Total Adjusted Replacement Cost New
Physical Depreciation (% Bad) A 35%
Depreciated Value
Economic Depreciation (% Bad) 0
Functional Depreciation (% Bad) 0
Total Depreciated Value
Market Area Factor 1.00
Building Value
Misc Improvements Value
Total Improvement Value

Assessed Land Value
   
Assessed Total Value



Addition Summary 
StoryTypeCodeArea
1.00 CARPORT FINISH CPF 330
1.00 UTILITY FIN UTF 120
1.00 OPEN PORCH FIN OPF 168
1.00 SCREEN PORCH U SPU 260
 
Other Improvements 
UnitsDescriptionItemCodeYear% BadValue
10x10 DIMENSIONS UTILITY FRAME 1990 65
 


Building Sketch
Photograph
Building Sketch Building Photo
(Click sketch for bigger image)