Cumberland County
Building Summary

Data last updated on: 12/3/2025     Ownership current as of: 11/20/2025     Tax Year: 2025
REID 0497172381000

PIN # 0497-17-2381

Location Address Property Description
2067 WADE STEDMAN RD 2 ACRES M J JONES LD
   
Property Owner Owner's Mailing Address
DAVIS, TERRY
2067 WADE STEDMAN RD
STEDMAN NC 28391
Parcel
Buildings
Misc Improvements
Land
Deeds
Documents
Notes
Sales
Sales Comparison
Photos
Building Location Address
2067 WADE STEDMAN RD
Building Description
R1-SINGLE-FAMILY-RES
Card   of  1
Bldg Type R1-SINGLE-FAMILY-RES
Units 0
Living Area (SQFT) 1230
Number of Stories 1.00
Style 000002-STYLE
Foundation G-PIERS-W/CNTFWL
Frame CONSTANT
Exterior 03-MAS/ABST/OLD-WOOD
Const Type
Heating M-07&S-01
Air Cond AC-Y
Plumbing Baths (Full):   1
Baths (Half):   0
Extra Fixtures:   0
Total Plumbing Fixtures:   3 
Bedrooms 3
Floor 09-HARDWD-PARQUE
Roof Cover 03-COMP SHINGLE
Roof Type 05-HIP
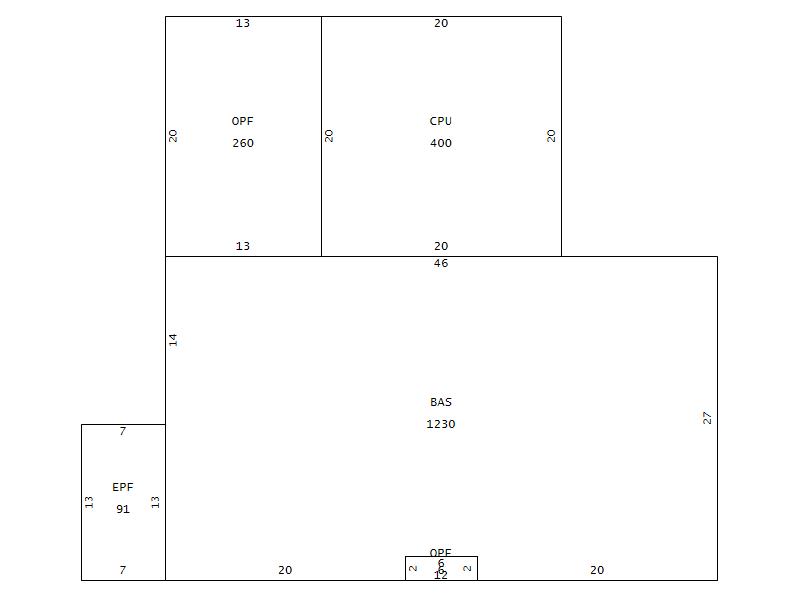
Main Body (SQFT) 1230
Year Built 1959
Additions 4
Effective Year 1959
Remodeled 0
Interior Adj.
Other Features
Building Total & Improvement Details

Grade 350 100%
Percentage Complete 100
Total Adjusted Replacement Cost New $151,236
Physical Depreciation (% Bad) A 40%
Depreciated Value $90,742
Economic Depreciation (% Bad) 0
Functional Depreciation (% Bad) 0
Total Depreciated Value $90,742
Market Area Factor 1.00
Building Value $90,742
Misc Improvements Value $3,158
Total Improvement Value $93,900

Assessed Land Value $43,500
   
Assessed Total Value $210,200



Addition Summary 
StoryTypeCodeArea
1.00 ENCL PORCH FIN EPF 91
1.00 OPEN PORCH FIN OPF 12
1.00 OPEN PORCH FIN OPF 260
1.00 CARPORT UNFIN CPU 400
 
Other Improvements 
UnitsDescriptionItemCodeYear% BadValue
18x20 DIMENSIONS UTILITY FRAME 1983 65 3158
 


Building Sketch
Photograph
Building Sketch Building Photo
(Click sketch for bigger image)