Cumberland County
Building Summary

Data last updated on: 10/17/2025     Ownership current as of: 10/14/2025     Tax Year: 2025
REID 0497967956000

PIN # 0497-96-7956

Location Address Property Description
2040 PAGE RD J ABNER HUBBARD LO:12 PL:0057-0002
   
Property Owner Owner's Mailing Address
ARMSTRONG, THOMAS;ARMSTRONG, ELIZABETH
2040 PAGE ROAD
STEDMAN NC 28391
Parcel
Buildings
Misc Improvements
Land
Deeds
Documents
Notes
Sales
Sales Comparison
Photos
Building Location Address
2040 PAGE RD
Building Description
R1-SINGLE-FAMILY-RES
Card   of  1
Bldg Type R1-SINGLE-FAMILY-RES
Units 0
Living Area (SQFT) 1620
Number of Stories 2.00
Style 000002-STYLE
Foundation G-PIERS-W/CNTFWL
Frame CONSTANT
Exterior 04-VINYL-SIDING
Const Type
Heating M-07&S-01
Air Cond AC-Y
Plumbing Baths (Full):   2
Baths (Half):   1
Extra Fixtures:   0
Total Plumbing Fixtures:   8 
Bedrooms 3
Floor 11-CARPET-COMB
Roof Cover 03-COMP SHINGLE
Roof Type 05-HIP
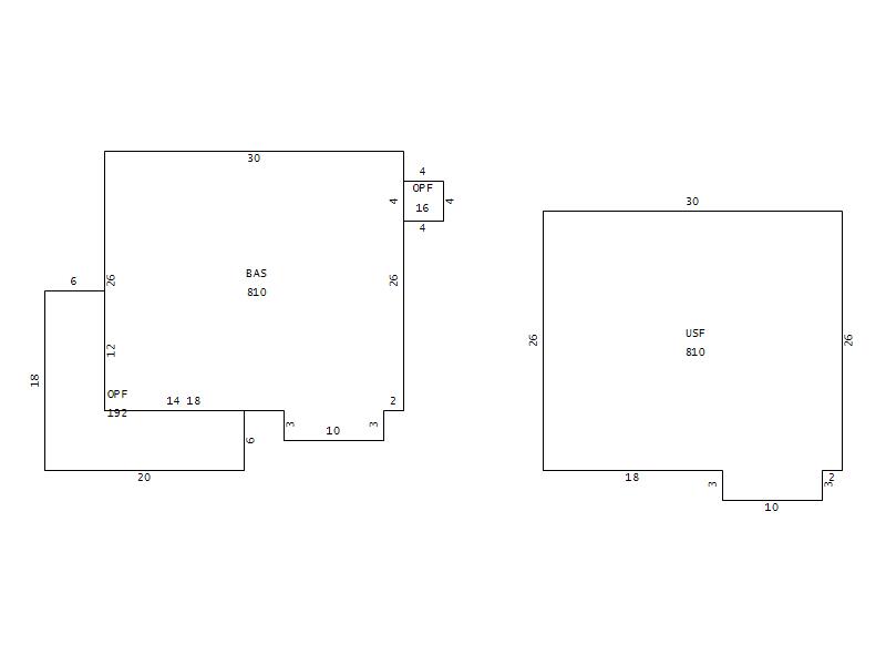
Main Body (SQFT) 810
Year Built 1989
Additions 3
Effective Year 1995
Remodeled 0
Interior Adj.
Other Features
Building Total & Improvement Details

Grade 335 92%
Percentage Complete 100
Total Adjusted Replacement Cost New $156,693
Physical Depreciation (% Bad) A 24%
Depreciated Value $119,087
Economic Depreciation (% Bad) 0
Functional Depreciation (% Bad) 0
Total Depreciated Value $119,087
Market Area Factor 1.00
Building Value $119,087
Misc Improvements Value $4,354
Total Improvement Value $123,441

Assessed Land Value $29,000
   
Assessed Total Value $224,000



Addition Summary 
StoryTypeCodeArea
1.00 OPEN PORCH FIN OPF 16
1.00 OPEN PORCH FIN OPF 192
1.00 UPPER STY FIN USF 810
 
Other Improvements 
UnitsDescriptionItemCodeYear% BadValue
10x10 DIMENSIONS UTILITY FRAME 2021 17 2667
10x10 DIMENSIONS UTILITY FRAME 2001 65 1125
10x10 DIMENSIONS SHELTER 2019 27 562
 


Building Sketch
Photograph
Building Sketch Building Photo
(Click sketch for bigger image)