Cumberland County
Building Summary

Data last updated on: 1/28/2026     Ownership current as of: 1/20/2026     Tax Year: 2026
REID 0406711616000

PIN # 0406-71-1616

Location Address Property Description
1742 WINNABOW DR BEAVER CREEK NORTH LO:28 SE:1-PT2 PL:0082-0192
   
Property Owner Owner's Mailing Address
AREVALO, JOSHUA MOISES VELEZ
1742 WINNABOW DRIVE
FAYETTEVILLE NC 28304
Parcel
Buildings
Misc Improvements
Land
Deeds
Documents
Notes
Sales
Sales Comparison
Photos
Building Location Address
1742 WINNABOW DR
Building Description
R1-SINGLE-FAMILY-RES
Card   of  1
Bldg Type R1-SINGLE-FAMILY-RES
Units 0
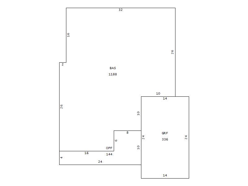
Living Area (SQFT) 1188
Number of Stories 1.00
Style 000002-STYLE
Foundation S-SLAB
Frame CONSTANT
Exterior 03-MAS/ABST/OLD-WOOD
Const Type
Heating M-07&S-02
Air Cond AC-Y
Plumbing Baths (Full):   2
Baths (Half):   0
Extra Fixtures:   0
Total Plumbing Fixtures:   6 
Bedrooms 3
Floor 11-CARPET-COMB
Roof Cover 03-COMP SHINGLE
Roof Type 02-GABLE
Main Body (SQFT) 1188
Year Built 1993
Additions 2
Effective Year 2000
Remodeled 0
Interior Adj.
Other Features
Building Total & Improvement Details

Grade 350 100%
Percentage Complete 100
Total Adjusted Replacement Cost New $151,168
Physical Depreciation (% Bad) A 21%
Depreciated Value $119,423
Economic Depreciation (% Bad) 0
Functional Depreciation (% Bad) 0
Total Depreciated Value $119,423
Market Area Factor 1.00
Building Value $119,423
Misc Improvements Value $215
Total Improvement Value $119,638

Assessed Land Value $20,500
   
Assessed Total Value $215,900



Addition Summary 
StoryTypeCodeArea
1.00 GARAGE FINISH GRF 336
1.00 OPEN PORCH FIN OPF 144
 
Other Improvements 
UnitsDescriptionItemCodeYear% BadValue
8x10 DIMENSIONS CONCRETE PATIO 1993 65 215
 


Building Sketch
Photograph
Building Sketch Building Photo
(Click sketch for bigger image)