Cumberland County
Building Summary

Data last updated on: 1/28/2026     Ownership current as of: 1/20/2026     Tax Year: 2026
REID 0406725443000

PIN # 0406-72-5443

Location Address Property Description
5708 RANDLEMAN ST BEAVER CREEK NORTH LO:103 SE:02 PL:0083-0093
   
Property Owner Owner's Mailing Address
FLORES, ROBERTO D;FLORES, TAYLOR
5708 RANDLEMAN ST
FAYETTEVILLE NC 28304
Parcel
Buildings
Misc Improvements
Land
Deeds
Documents
Notes
Sales
Sales Comparison
Photos
Building Location Address
5708 RANDLEMAN ST
Building Description
R1-SINGLE-FAMILY-RES
Card   of  1
Bldg Type R1-SINGLE-FAMILY-RES
Units 0
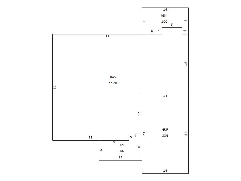
Living Area (SQFT) 1120
Number of Stories 1.00
Style 000002-STYLE
Foundation G-PIERS-W/CNTFWL
Frame CONSTANT
Exterior 03-MAS/ABST/OLD-WOOD
Const Type
Heating M-07&S-02
Air Cond AC-Y
Plumbing Baths (Full):   2
Baths (Half):   0
Extra Fixtures:   0
Total Plumbing Fixtures:   6 
Bedrooms 3
Floor 11-CARPET-COMB
Roof Cover 03-COMP SHINGLE
Roof Type 02-GABLE
Main Body (SQFT) 1120
Year Built 1994
Additions 3
Effective Year 1999
Remodeled 0
Interior Adj.
Other Features
Building Total & Improvement Details

Grade 350 100%
Percentage Complete 100
Total Adjusted Replacement Cost New $147,441
Physical Depreciation (% Bad) A 22%
Depreciated Value $115,004
Economic Depreciation (% Bad) 0
Functional Depreciation (% Bad) 0
Total Depreciated Value $115,004
Market Area Factor 1.00
Building Value $115,004
Misc Improvements Value
Total Improvement Value $115,004

Assessed Land Value $20,500
   
Assessed Total Value $206,700



Addition Summary 
StoryTypeCodeArea
1.00 GARAGE FINISH GRF 336
1.00 OPEN PORCH FIN OPF 86
1.00 WOOD DECK WDK 100
 
Other Improvements 
 


Building Sketch
Photograph
Building Sketch Building Photo
(Click sketch for bigger image)