Cumberland County
Building Summary

Data last updated on: 1/30/2026     Ownership current as of: 1/20/2026     Tax Year: 2026
REID 0520858337000

PIN # 0520-85-8337

Location Address Property Description
5425 SANDSTONE DR COLLEGE LAKES PT-C LO:32 SE:10 PL:0035-0022
   
Property Owner Owner's Mailing Address
GEORGE, STEVEN
5425 SANDSTONE DRIVE
FAYETTEVILLE NC 28311
Parcel
Buildings
Misc Improvements
Land
Deeds
Documents
Notes
Sales
Sales Comparison
Photos
Building Location Address
5425 SANDSTONE DR
Building Description
R1-SINGLE-FAMILY-RES
Card   of  1
Bldg Type R1-SINGLE-FAMILY-RES
Units 0
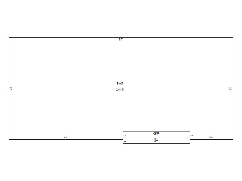
Living Area (SQFT) 1448
Number of Stories 1.00
Style 000002-STYLE
Foundation G-PIERS-W/CNTFWL
Frame CONSTANT
Exterior 11-BRICK-VENEER
Const Type
Heating M-07&S-01
Air Cond AC-Y
Plumbing Baths (Full):   2
Baths (Half):   0
Extra Fixtures:   0
Total Plumbing Fixtures:   6 
Bedrooms 3
Floor 09-HARDWD-PARQUE
Roof Cover 03-COMP SHINGLE
Roof Type 02-GABLE
Main Body (SQFT) 1448
Year Built 1969
Additions 1
Effective Year 1969
Remodeled 0
Interior Adj.
Other Features
Building Total & Improvement Details

Grade 350 100%
Percentage Complete 100
Total Adjusted Replacement Cost New $164,140
Physical Depreciation (% Bad) A 35%
Depreciated Value $106,691
Economic Depreciation (% Bad) 0
Functional Depreciation (% Bad) 0
Total Depreciated Value $106,691
Market Area Factor 1.00
Building Value $106,691
Misc Improvements Value $3,989
Total Improvement Value $110,680

Assessed Land Value $35,000
   
Assessed Total Value $190,300



Addition Summary 
StoryTypeCodeArea
1.00 OPEN PORCH FIN OPF 51
 
Other Improvements 
UnitsDescriptionItemCodeYear% BadValue
10x12 DIMENSIONS CONCRETE PATIO 1983 65 322
10x20 DIMENSIONS UTILITY FRAME 1983 65 2249
20x12 DIMENSIONS CARPORT UNFIN 1999 65 1418
 


Building Sketch
Photograph
Building Sketch Building Photo
(Click sketch for bigger image)