Cumberland County
Building Summary

Data last updated on: 1/30/2026     Ownership current as of: 1/20/2026     Tax Year: 2026
REID 0520868569000

PIN # 0520-86-8569

Location Address Property Description
447 DEERPATH DR COLLEGE LAKES LO:138 SE:12PT2 PL:0039-0006
   
Property Owner Owner's Mailing Address
MITCHELL, PAMELA G
447 DEERPATH DRIVE
FAYETTEVILLE NC 28311
Parcel
Buildings
Misc Improvements
Land
Deeds
Documents
Notes
Sales
Sales Comparison
Photos
Building Location Address
447 DEERPATH DR
Building Description
R1-SINGLE-FAMILY-RES
Card   of  1
Bldg Type R1-SINGLE-FAMILY-RES
Units 0
Living Area (SQFT) 1704
Number of Stories 1.75
Style 000002-STYLE
Foundation C-COMBO/SLAB/CSP
Frame CONSTANT
Exterior 12-BRICK/WOOD
Const Type
Heating M-07&S-01
Air Cond AC-Y
Plumbing Baths (Full):   2
Baths (Half):   1
Extra Fixtures:   0
Total Plumbing Fixtures:   8 
Bedrooms 4
Floor 09-HARDWD-PARQUE
Roof Cover 03-COMP SHINGLE
Roof Type 02-GABLE
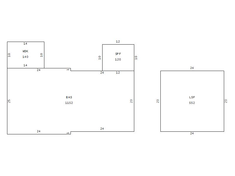
Main Body (SQFT) 1152
Year Built 1973
Additions 3
Effective Year 1973
Remodeled 0
Interior Adj.
Other Features
Building Total & Improvement Details

Grade 350 100%
Percentage Complete 100
Total Adjusted Replacement Cost New $193,317
Physical Depreciation (% Bad) A 33%
Depreciated Value $129,522
Economic Depreciation (% Bad) 0
Functional Depreciation (% Bad) 0
Total Depreciated Value $129,522
Market Area Factor 1.00
Building Value $129,522
Misc Improvements Value $1,984
Total Improvement Value $131,506

Assessed Land Value $35,000
   
Assessed Total Value $211,800



Addition Summary 
StoryTypeCodeArea
1.00 OPEN PORCH FIN OPF 140
1.00 SCREEN PORCH F SPF 120
1.00 LOWER STY FIN LSF 552
 
Other Improvements 
UnitsDescriptionItemCodeYear% BadValue
4x6 DIMENSIONS STOOP 1983 65 131
12x8 DIMENSIONS UTILITY FRAME 2012 40 1444
8x10 DIMENSIONS UTILITY METAL 2005 65 181
8x12 DIMENSIONS UTILITY METAL 2011 53 228
 


Building Sketch
Photograph
Building Sketch Building Photo
(Click sketch for bigger image)