Cumberland County
Building Summary

Data last updated on: 1/30/2026     Ownership current as of: 1/20/2026     Tax Year: 2026
REID 0520876059000

PIN # 0520-87-6059

Location Address Property Description
440 SADDLE RIDGE RD COLLEGE LAKES LO:167 SE:12PT2 PL:0039-0006
   
Property Owner Owner's Mailing Address
LINDLEY, BLAKE;LINDLEY, SIERRA
1425 BUTTERWOOD CIR
FAYETTEVILLE NC 28314
Parcel
Buildings
Misc Improvements
Land
Deeds
Documents
Notes
Sales
Sales Comparison
Photos
Building Location Address
440 SADDLE RIDGE RD
Building Description
R1-SINGLE-FAMILY-RES
Card   of  1
Bldg Type R1-SINGLE-FAMILY-RES
Units 0
Living Area (SQFT) 2029
Number of Stories 2.00
Style 000002-STYLE
Foundation S-SLAB
Frame CONSTANT
Exterior 04-VINYL-SIDING
Const Type
Heating M-07&S-01
Air Cond AC-Y
Plumbing Baths (Full):   2
Baths (Half):   1
Extra Fixtures:   3
Total Plumbing Fixtures:   11 
Bedrooms 5
Roof Cover 03-COMP SHINGLE
Roof Type 02-GABLE
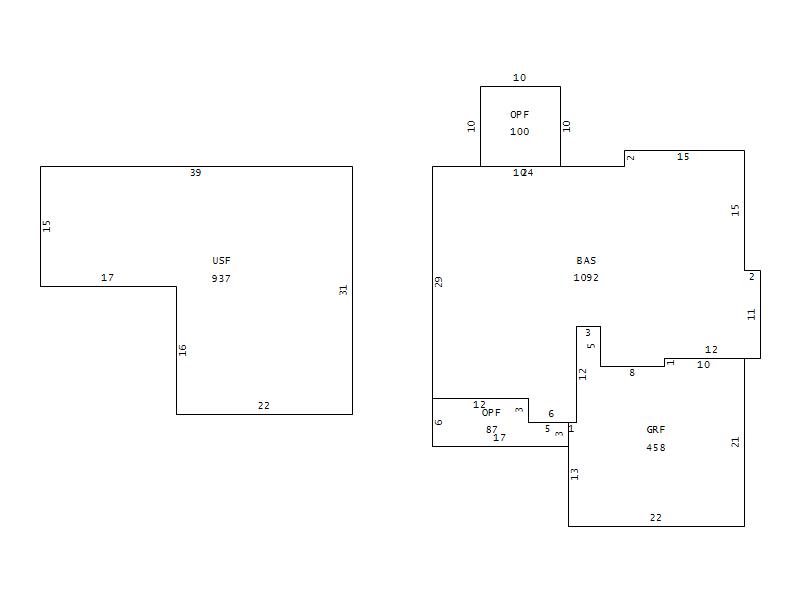
Main Body (SQFT) 1092
Year Built 2017
Additions 4
Effective Year 2017
Remodeled 0
Interior Adj.
Other Features
Building Total & Improvement Details

Grade 370 108%
Percentage Complete 100
Total Adjusted Replacement Cost New $251,650
Physical Depreciation (% Bad) A 10%
Depreciated Value $226,485
Economic Depreciation (% Bad) 0
Functional Depreciation (% Bad) 0
Total Depreciated Value $226,485
Market Area Factor 1.00
Building Value $226,485
Misc Improvements Value $1,839
Total Improvement Value $228,324

Assessed Land Value $35,000
   
Assessed Total Value $309,800



Addition Summary 
StoryTypeCodeArea
1.00 GARAGE FINISH GRF 458
1.00 OPEN PORCH FIN OPF 87
1.00 OPEN PORCH FIN OPF 100
1.00 UPPER STY FIN USF 937
 
Other Improvements 
UnitsDescriptionItemCodeYear% BadValue
10x14 DIMENSIONS CONCRETE PATIO 2017 33 719
10X20 DIMENSIONS CONCRETE PATIO 2019 27 1120
 


Building Sketch
Photograph
Building Sketch Building Photo
(Click sketch for bigger image)