Cumberland County
Building Summary

Data last updated on: 1/30/2026     Ownership current as of: 1/20/2026     Tax Year: 2026
REID 0530027802000

PIN # 0530-02-7802

Location Address Property Description
551 FARMVIEW DR COLLEGE LAKES PT-A LO:97 SE:05 PL:0029-0023
   
Property Owner Owner's Mailing Address
PIMENTAL, FEDERICO ROMAN NUNEZ
5247 MAWOOD AVE
FAYETTEVILLE NC 28314

Value subject to change, property assessment under review

Parcel
Buildings
Misc Improvements
Land
Deeds
Documents
Notes
Sales
Photos
Building Location Address
551 FARMVIEW DR
Building Description
R1-SINGLE-FAMILY-RES
Card   of  1
Bldg Type R1-SINGLE-FAMILY-RES
Units 0
Living Area (SQFT) 1580
Number of Stories 1.00
Style 000002-STYLE
Foundation G-PIERS-W/CNTFWL
Frame CONSTANT
Exterior 12-BRICK/WOOD
Const Type
Heating M-07&S-01
Air Cond AC-Y
Plumbing Baths (Full):   3
Baths (Half):   0
Extra Fixtures:   0
Total Plumbing Fixtures:   9 
Bedrooms 4
Floor 11-CARPET-COMB
Roof Cover 03-COMP SHINGLE
Roof Type 02-GABLE
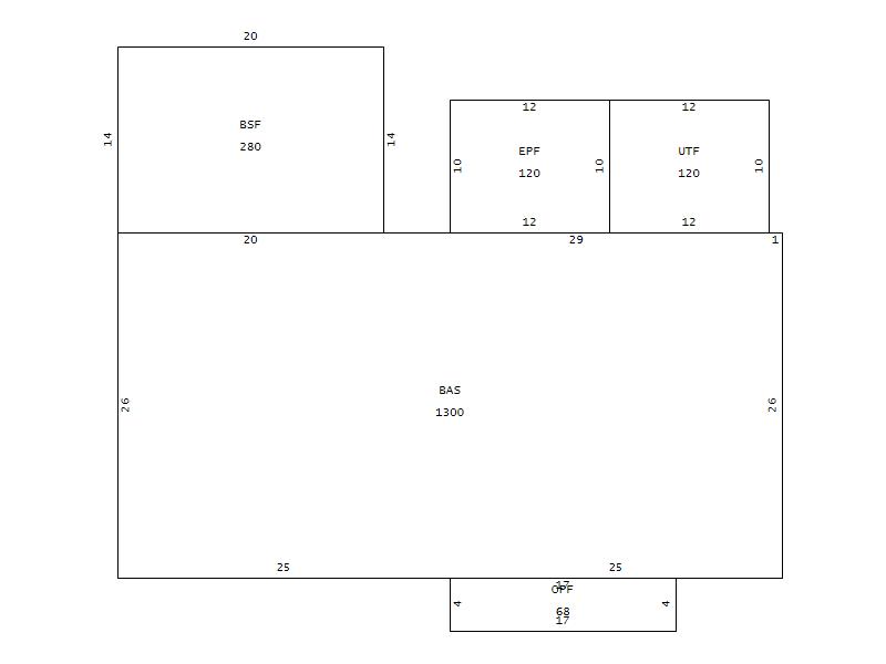
Main Body (SQFT) 1300
Year Built 1965
Additions 4
Effective Year 1965
Remodeled 0
Interior Adj.
Other Features
Building Total & Improvement Details

Grade 350 100%
Percentage Complete 100
Total Adjusted Replacement Cost New
Physical Depreciation (% Bad) A 37%
Depreciated Value
Economic Depreciation (% Bad) 0
Functional Depreciation (% Bad) 0
Total Depreciated Value
Market Area Factor 1.00
Building Value
Misc Improvements Value
Total Improvement Value

Assessed Land Value
   
Assessed Total Value



Addition Summary 
StoryTypeCodeArea
1.00 UTILITY FIN UTF 120
1.00 ENCL PORCH FIN EPF 120
1.00 OPEN PORCH FIN OPF 68
1.00 BASE SEMI FIN BSF 280
 
Other Improvements 
UnitsDescriptionItemCodeYear% BadValue
6x8 DIMENSIONS UTILITY METAL 1983 65
10x12 DIMENSIONS UTILITY FRAME 1983 65
10x8 DIMENSIONS CONCRETE PATIO 1983 65
16x16 DIMENSIONS DECK WOOD 1993 65
 


Building Sketch
Photograph
Building Sketch Building Photo
(Click sketch for bigger image)