Cumberland County
Building Summary

Data last updated on: 1/30/2026     Ownership current as of: 1/20/2026     Tax Year: 2026
REID 0530124188000

PIN # 0530-12-4188

Location Address Property Description
5027 CHESAPEAKE RD COLLEGE LAKES LO:20 SE:5-PTC PL:0033-0041
   
Property Owner Owner's Mailing Address
YOUNG, BRENTON
5027 CHESAPEAKE ROAD
FAYETTEVILLE NC 28311

Value subject to change, property assessment under review

Parcel
Buildings
Misc Improvements
Land
Deeds
Documents
Notes
Sales
Photos
Building Location Address
5027 CHESAPEAKE RD
Building Description
R1-SINGLE-FAMILY-RES
Card   of  1
Bldg Type R1-SINGLE-FAMILY-RES
Units 0
Living Area (SQFT) 1789
Number of Stories 1.00
Style 000002-STYLE
Foundation G-PIERS-W/CNTFWL
Frame CONSTANT
Exterior 11-BRICK-VENEER
Const Type
Heating M-07&S-01
Air Cond AC-Y
Plumbing Baths (Full):   2
Baths (Half):   0
Extra Fixtures:   0
Total Plumbing Fixtures:   6 
Bedrooms 3
Floor 12-CARPET
Roof Cover 03-COMP SHINGLE
Roof Type 02-GABLE
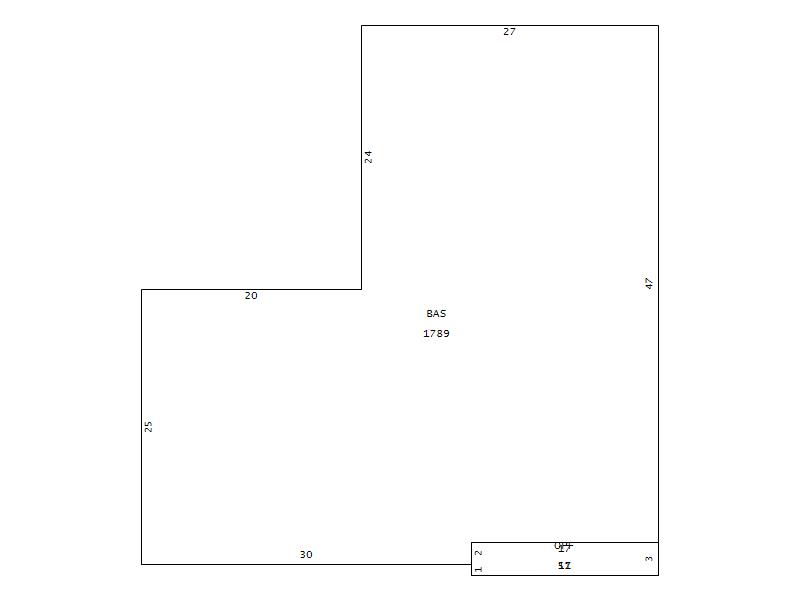
Main Body (SQFT) 1789
Year Built 1969
Additions 1
Effective Year 1980
Remodeled 0
Interior Adj.
Other Features
Building Total & Improvement Details

Grade 350 100%
Percentage Complete 100
Total Adjusted Replacement Cost New
Physical Depreciation (% Bad) A 30%
Depreciated Value
Economic Depreciation (% Bad) 0
Functional Depreciation (% Bad) 0
Total Depreciated Value
Market Area Factor 1.00
Building Value
Misc Improvements Value
Total Improvement Value

Assessed Land Value
   
Assessed Total Value



Addition Summary 
StoryTypeCodeArea
1.00 OPEN PORCH FIN OPF 51
 
Other Improvements 
UnitsDescriptionItemCodeYear% BadValue
10x12 DIMENSIONS CANOPY OVER PATIO 1983 65
12x16 DIMENSIONS UTILITY FRAME 1983 65
12x8 DIMENSIONS UTILITY FRAME 1988 65
 


Building Sketch
Photograph
Building Sketch Building Photo
(Click sketch for bigger image)