Cumberland County
Building Summary

Data last updated on: 1/30/2026     Ownership current as of: 1/20/2026     Tax Year: 2026
REID 0530136040000

PIN # 0530-13-6040

Location Address Property Description
5075 CHESAPEAKE RD COLLEGE LAKES LO:31 SE:5PT-B PL:0030-0005
   
Property Owner Owner's Mailing Address
THOMAS, ERNEST R
5075 CHESAPEAKE RD
FAYETTEVILLE NC 28311

Value subject to change, property assessment under review

Parcel
Buildings
Misc Improvements
Land
Deeds
Documents
Notes
Sales
Photos
Building Location Address
5075 CHESAPEAKE RD
Building Description
R1-SINGLE-FAMILY-RES
Card   of  1
Bldg Type R1-SINGLE-FAMILY-RES
Units 0
Living Area (SQFT) 1085
Number of Stories 1.00
Style 000002-STYLE
Foundation G-PIERS-W/CNTFWL
Frame CONSTANT
Exterior 11-BRICK-VENEER
Const Type
Heating M-07&S-01
Air Cond AC-Y
Plumbing Baths (Full):   2
Baths (Half):   0
Extra Fixtures:   1
Total Plumbing Fixtures:   7 
Bedrooms 3
Floor 09-HARDWD-PARQUE
Roof Cover 03-COMP SHINGLE
Roof Type 02-GABLE
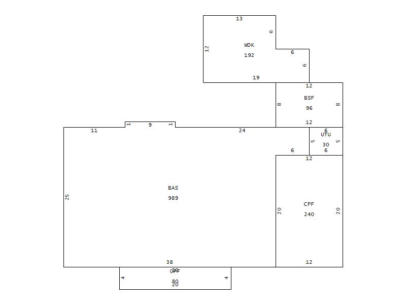
Main Body (SQFT) 989
Year Built 1967
Additions 4
Effective Year 1986
Remodeled 0
Interior Adj.
Other Features
Building Total & Improvement Details

Grade 350 100%
Percentage Complete 100
Total Adjusted Replacement Cost New
Physical Depreciation (% Bad) A 27%
Depreciated Value
Economic Depreciation (% Bad) 0
Functional Depreciation (% Bad) 0
Total Depreciated Value
Market Area Factor 1.00
Building Value
Misc Improvements Value
Total Improvement Value

Assessed Land Value
   
Assessed Total Value



Addition Summary 
StoryTypeCodeArea
1.00 BASE SEMI FIN BSF 96
1.00 UTILITY UNFIN UTU 30
1.00 CARPORT FINISH CPF 240
1.00 OPEN PORCH FIN OPF 80
 
Other Improvements 
UnitsDescriptionItemCodeYear% BadValue
9x10 DIMENSIONS CANOPY OVER PATIO 1997 65
 


Building Sketch
Photograph
Building Sketch Building Photo
(Click sketch for bigger image)