Cumberland County
Building Summary

Data last updated on: 1/30/2026     Ownership current as of: 1/20/2026     Tax Year: 2026
REID 0530158535000

PIN # 0530-15-8535

Location Address Property Description
5193 SOUTHPORT RD COLLEGE LAKES PT B LO:38 SE:7 PL:0039-0018
   
Property Owner Owner's Mailing Address
GRAHAM, CHRISTOPHER A
5193 SOUTHPORT RD
FAYETTEVILLE NC 28311

Value subject to change, property assessment under review

Parcel
Buildings
Misc Improvements
Land
Deeds
Documents
Notes
Sales
Photos
Building Location Address
5193 SOUTHPORT RD
Building Description
R1-SINGLE-FAMILY-RES
Card   of  1
Bldg Type R1-SINGLE-FAMILY-RES
Units 0
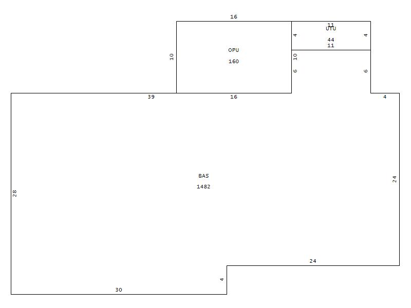
Living Area (SQFT) 1482
Number of Stories 1.00
Style 000002-STYLE
Foundation G-PIERS-W/CNTFWL
Frame CONSTANT
Exterior 12-BRICK/WOOD
Const Type
Heating M-07&S-01
Air Cond AC-Y
Plumbing Baths (Full):   2
Baths (Half):   0
Extra Fixtures:   0
Total Plumbing Fixtures:   6 
Bedrooms 3
Floor 09-HARDWD-PARQUE
Roof Cover 03-COMP SHINGLE
Roof Type 02-GABLE
Main Body (SQFT) 1482
Year Built 1972
Additions 2
Effective Year 1972
Remodeled 0
Interior Adj.
Other Features
Building Total & Improvement Details

Grade 350 100%
Percentage Complete 100
Total Adjusted Replacement Cost New
Physical Depreciation (% Bad) A 34%
Depreciated Value
Economic Depreciation (% Bad) 0
Functional Depreciation (% Bad) 0
Total Depreciated Value
Market Area Factor 1.00
Building Value
Misc Improvements Value
Total Improvement Value

Assessed Land Value
   
Assessed Total Value



Addition Summary 
StoryTypeCodeArea
1.00 UTILITY UNFIN UTU 44
1.00 OPEN POR UNFIN OPU 160
 
Other Improvements 
UnitsDescriptionItemCodeYear% BadValue
4x24 DIMENSIONS STOOP 1983 65
7x8 DIMENSIONS UTILITY METAL 1983 65
 


Building Sketch
Photograph
Building Sketch Building Photo
(Click sketch for bigger image)