Cumberland County
Building Summary

Data last updated on: 12/15/2025     Ownership current as of: 12/9/2025     Tax Year: 2025
REID 0403788807000

PIN # 0403-78-8807

Location Address Property Description
4327 HASKELL DR FAIRWAY FOREST LO:24 SE:05 PL:0086-0096
   
Property Owner Owner's Mailing Address
FAISON, NYASIA N
4327 HASKELL DRIVE
HOPE MILLS NC 28348
Parcel
Buildings
Misc Improvements
Land
Deeds
Documents
Notes
Sales
Sales Comparison
Photos
Building Location Address
4327 HASKELL DR
Building Description
R1-SINGLE-FAMILY-RES
Card   of  1
Bldg Type R1-SINGLE-FAMILY-RES
Units 0
Living Area (SQFT) 1296
Number of Stories 1.00
Style 000002-STYLE
Foundation S-SLAB
Frame CONSTANT
Exterior 11-BRICK-VENEER
Const Type
Heating M-07&S-01
Air Cond AC-Y
Plumbing Baths (Full):   2
Baths (Half):   0
Extra Fixtures:   0
Total Plumbing Fixtures:   6 
Bedrooms 3
Floor 11-CARPET-COMB
Roof Cover 03-COMP SHINGLE
Roof Type 02-GABLE
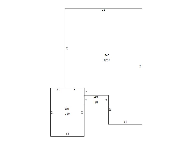
Main Body (SQFT) 1296
Year Built 1996
Additions 2
Effective Year 1996
Remodeled 0
Interior Adj.
Other Features
Building Total & Improvement Details

Grade 350 100%
Percentage Complete 100
Total Adjusted Replacement Cost New $161,555
Physical Depreciation (% Bad) A 23%
Depreciated Value $124,397
Economic Depreciation (% Bad) 0
Functional Depreciation (% Bad) 0
Total Depreciated Value $124,397
Market Area Factor 1.00
Building Value $124,397
Misc Improvements Value $1,896
Total Improvement Value $126,293

Assessed Land Value $35,000
   
Assessed Total Value $222,900



Addition Summary 
StoryTypeCodeArea
1.00 GARAGE FINISH GRF 280
1.00 OPEN PORCH FIN OPF 40
 
Other Improvements 
UnitsDescriptionItemCodeYear% BadValue
10x12 DIMENSIONS CONCRETE PATIO 1996 65 322
10x14 DIMENSIONS UTILITY FRAME 1998 65 1574
 


Building Sketch
Photograph
Building Sketch Building Photo
(Click sketch for bigger image)