Cumberland County
Building Summary

Data last updated on: 1/27/2026     Ownership current as of: 1/20/2026     Tax Year: 2026
REID 1430390823000

PIN # 1430-39-0823

Location Address Property Description
4309 MANLY SMITH RD JAMER R SMITH & PAUL M MAGUIRE LO:5 SE:01 PL:0080-0008
   
Property Owner Owner's Mailing Address
KLAWITTER, RYAN;KLAWITTER, BRANDI
4309 MANLY SMITH ROAD
ROSEBORO NC 28382

Value subject to change, property assessment under review

Parcel
Buildings
Misc Improvements
Land
Deeds
Documents
Notes
Sales
Photos
Building Location Address
4309 MANLY SMITH RD
Building Description
R1-SINGLE-FAMILY-RES
Card   of  1
Bldg Type R1-SINGLE-FAMILY-RES
Units 0
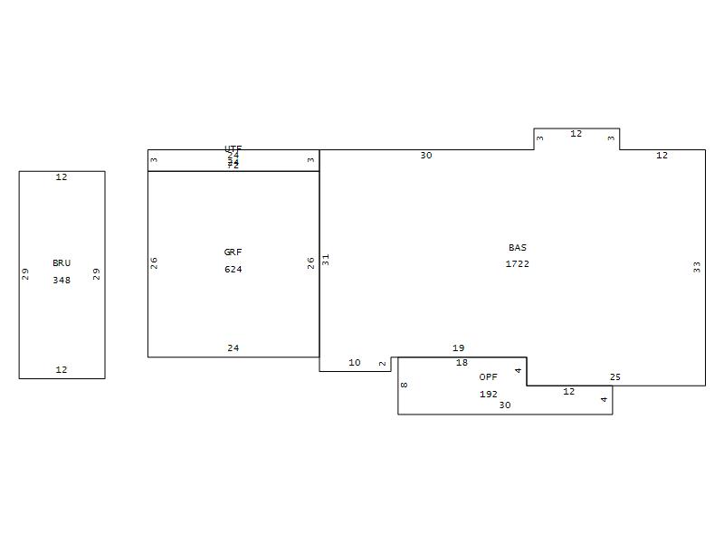
Living Area (SQFT) 1722
Number of Stories 1.00
Style 000002-STYLE
Foundation G-PIERS-W/CNTFWL
Frame CONSTANT
Exterior 11-BRICK-VENEER
Const Type
Heating M-07&S-01
Air Cond AC-Y
Plumbing Baths (Full):   2
Baths (Half):   0
Extra Fixtures:   2
Total Plumbing Fixtures:   8 
Bedrooms 3
Floor 11-CARPET-COMB
Roof Cover 03-COMP SHINGLE
Roof Type 02-GABLE
Main Body (SQFT) 1722
Year Built 1997
Additions 4
Effective Year 1997
Remodeled 0
Interior Adj.
Other Features
Building Total & Improvement Details

Grade 370 108%
Percentage Complete 100
Total Adjusted Replacement Cost New
Physical Depreciation (% Bad) A 23%
Depreciated Value
Economic Depreciation (% Bad) 0
Functional Depreciation (% Bad) 0
Total Depreciated Value
Market Area Factor 1.00
Building Value
Misc Improvements Value
Total Improvement Value

Assessed Land Value
   
Assessed Total Value



Addition Summary 
StoryTypeCodeArea
1.00 OPEN PORCH FIN OPF 192
1.00 GARAGE FINISH GRF 624
1.00 UTILITY FIN UTF 72
1.00 BONUS RM UNFIN BRU 348
 
Other Improvements 
UnitsDescriptionItemCodeYear% BadValue
8x12 DIMENSIONS UTILITY METAL 1997 65
 


Building Sketch
Photograph
Building Sketch Building Photo
(Click sketch for bigger image)