Cumberland County
Building Summary

Data last updated on: 1/30/2026     Ownership current as of: 1/20/2026     Tax Year: 2026
REID 9476792086000

PIN # 9476-79-2086

Location Address Property Description
5753 PONDHAVEN DR HIGHCROFT LO:95 PH:2-PT2 PL:0140-0076
   
Property Owner Owner's Mailing Address
BUTLER, JEAN CLAUDE;BUTLER, LISA
5753 PONDHAVEN DRIVE
FAYETTEVILLE NC 28314
Parcel
Buildings
Misc Improvements
Land
Deeds
Documents
Notes
Sales
Sales Comparison
Photos
Building Location Address
5753 PONDHAVEN DR
Building Description
R1-SINGLE-FAMILY-RES
Card   of  1
Bldg Type R1-SINGLE-FAMILY-RES
Units 0
Living Area (SQFT) 2371
Number of Stories 2.00
Style 000002-STYLE
Foundation S-SLAB
Frame CONSTANT
Exterior 04-VINYL-SIDING
Const Type
Heating M-07&S-01
Air Cond AC-Y
Plumbing Baths (Full):   2
Baths (Half):   1
Extra Fixtures:   2
Total Plumbing Fixtures:   10 
Bedrooms 4
Roof Cover 03-COMP SHINGLE
Roof Type 02-GABLE
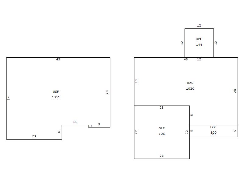
Main Body (SQFT) 1020
Year Built 2019
Additions 4
Effective Year 2019
Remodeled 0
Interior Adj.
Other Features
Building Total & Improvement Details

Grade 370 108%
Percentage Complete 100
Total Adjusted Replacement Cost New $282,943
Physical Depreciation (% Bad) G 5%
Depreciated Value $268,796
Economic Depreciation (% Bad) 0
Functional Depreciation (% Bad) 0
Total Depreciated Value $268,796
Market Area Factor 1.00
Building Value $268,796
Misc Improvements Value $1,008
Total Improvement Value $269,804

Assessed Land Value $68,500
   
Assessed Total Value $354,300



Addition Summary 
StoryTypeCodeArea
1.00 OPEN PORCH FIN OPF 144
1.00 OPEN PORCH FIN OPF 100
1.00 GARAGE FINISH GRF 506
1.00 UPPER STY FIN USF 1351
 
Other Improvements 
UnitsDescriptionItemCodeYear% BadValue
15x12 DIMENSIONS CONCRETE PATIO 2019 27 1008
 


Building Sketch
Photograph
Building Sketch Building Photo
(Click sketch for bigger image)