Cumberland County
Building Summary

Data last updated on: 1/30/2026     Ownership current as of: 1/20/2026     Tax Year: 2026
REID 9476795013000

PIN # 9476-79-5013

Location Address Property Description
2229 COURTLAND DR HIGHCROFT LO:66 PH:2-PT2 PL:0140-0105
   
Property Owner Owner's Mailing Address
AUSTIN, ANDREW S;SCHNEIDER-AUSTIN, JULIA ROSEMARIE
2229 COURTLAND DRIVE
FAYETTEVILLE NC 28314

Value subject to change, property assessment under review

Parcel
Buildings
Misc Improvements
Land
Deeds
Documents
Notes
Sales
Photos
Building Location Address
2229 COURTLAND DR
Building Description
R1-SINGLE-FAMILY-RES
Card   of  1
Bldg Type R1-SINGLE-FAMILY-RES
Units 0
Living Area (SQFT) 2253
Number of Stories 2.00
Style 000088-STYLE
Foundation S-SLAB
Frame CONSTANT
Exterior 04-VINYL-SIDING
Const Type
Heating M-07&S-01
Air Cond AC-Y
Plumbing Baths (Full):   3
Baths (Half):   0
Extra Fixtures:   2
Total Plumbing Fixtures:   11 
Bedrooms 4
Roof Cover 03-COMP SHINGLE
Roof Type 02-GABLE
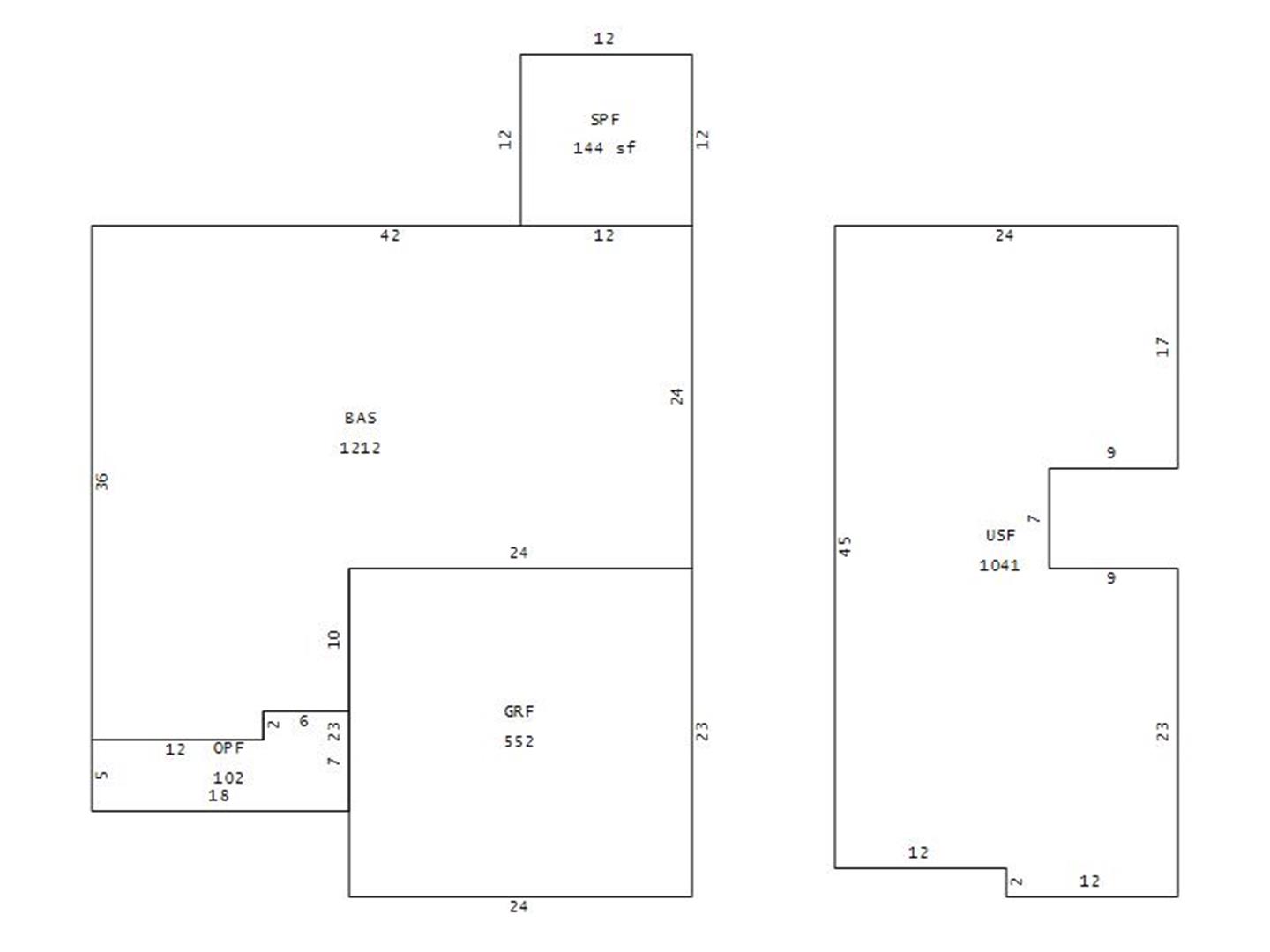
Main Body (SQFT) 1212
Year Built 2018
Additions 4
Effective Year 2018
Remodeled 0
Interior Adj.
Other Features
Building Total & Improvement Details

Grade 370 108%
Percentage Complete 100
Total Adjusted Replacement Cost New
Physical Depreciation (% Bad) A 8%
Depreciated Value
Economic Depreciation (% Bad) 0
Functional Depreciation (% Bad) 0
Total Depreciated Value
Market Area Factor 1.00
Building Value
Misc Improvements Value
Total Improvement Value

Assessed Land Value
   
Assessed Total Value



Addition Summary 
StoryTypeCodeArea
1.00 SCREEN PORCH F SPF 144
1.00 OPEN PORCH FIN OPF 102
1.00 GARAGE FINISH GRF 552
1.00 UPPER STY FIN USF 1041
 
Other Improvements 
UnitsDescriptionItemCodeYear% BadValue
12x12 DIMENSIONS CONCRETE PATIO 2018 30
 


Building Sketch
Photograph
Building Sketch Building Photo
(Click sketch for bigger image)