Cumberland County
Building Summary

Data last updated on: 12/31/2025     Ownership current as of: 12/30/2025     Tax Year: 2026
REID 9486576712000

PIN # 9486-57-6712

Location Address Property Description
2027 RIM RD LO:1
   
Property Owner Owner's Mailing Address
PARIKH, BHAVIK;PARIKH, BHAVI
843 FIREBRICK DR
CARY NC 27519
Parcel
Buildings
Misc Improvements
Land
Deeds
Documents
Notes
Sales
Sales Comparison
Photos
Building Location Address
2027 RIM RD
Building Description
R1-SINGLE-FAMILY-RES
Card   of  1
Bldg Type R1-SINGLE-FAMILY-RES
Units 0
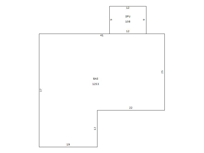
Living Area (SQFT) 1253
Number of Stories 1.00
Style 000002-STYLE
Foundation G-PIERS-W/CNTFWL
Frame CONSTANT
Exterior 11-BRICK-VENEER
Const Type
Heating M-07&S-01
Air Cond AC-Y
Plumbing Baths (Full):   1
Baths (Half):   0
Extra Fixtures:   0
Total Plumbing Fixtures:   3 
Bedrooms 3
Floor 11-CARPET-COMB
Roof Cover 03-COMP SHINGLE
Roof Type 02-GABLE
Main Body (SQFT) 1253
Year Built 1961
Additions 1
Effective Year 1980
Remodeled 0
Interior Adj.
Other Features
Building Total & Improvement Details

Grade 350 100%
Percentage Complete 100
Total Adjusted Replacement Cost New $144,098
Physical Depreciation (% Bad) A 30%
Depreciated Value $100,869
Economic Depreciation (% Bad) 0
Functional Depreciation (% Bad) 0
Total Depreciated Value $100,869
Market Area Factor 1.00
Building Value $100,869
Misc Improvements Value $1,539
Total Improvement Value $102,408

Assessed Land Value $18,225
   
Assessed Total Value $175,600



Addition Summary 
StoryTypeCodeArea
1.00 SCREEN PORCH U SPU 108
 
Other Improvements 
UnitsDescriptionItemCodeYear% BadValue
5x5 DIMENSIONS STOOP 1983 65 106
5x5 DIMENSIONS STOOP 1983 65 106
12x24 DIMENSIONS CARPORT UNFIN 1983 65 1327
 


Building Sketch
Photograph
Building Sketch Building Photo
(Click sketch for bigger image)