Cumberland County
Building Summary

Data last updated on: 12/31/2025     Ownership current as of: 12/30/2025     Tax Year: 2026
REID 9487143960000

PIN # 9487-14-3960

Location Address Property Description
8643 CLIFFDALE RD 0.72 AC P N MONROE LD
   
Property Owner Owner's Mailing Address
LEON, DUCLAUD
8643 CLIFFDALE RD
FAYETTEVILLE NC 28314
Parcel
Buildings
Misc Improvements
Land
Deeds
Documents
Notes
Sales
Sales Comparison
Photos
Building Location Address
8643 CLIFFDALE RD
Building Description
R1-SINGLE-FAMILY-RES
Card   of  1
Bldg Type R1-SINGLE-FAMILY-RES
Units 0
Living Area (SQFT) 2114
Number of Stories 1.00
Style 000002-STYLE
Foundation G-PIERS-W/CNTFWL
Frame CONSTANT
Exterior 11-BRICK-VENEER
Const Type
Heating M-07&S-01
Air Cond AC-Y
Plumbing Baths (Full):   2
Baths (Half):   0
Extra Fixtures:   0
Total Plumbing Fixtures:   6 
Bedrooms 3
Floor 11-CARPET-COMB
Roof Cover 03-COMP SHINGLE
Roof Type 02-GABLE
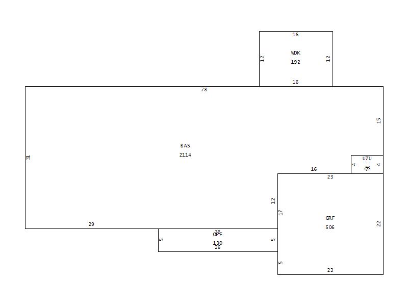
Main Body (SQFT) 2114
Year Built 1972
Additions 4
Effective Year 1972
Remodeled 0
Interior Adj.
Other Features
Building Total & Improvement Details

Grade 350 100%
Percentage Complete 100
Total Adjusted Replacement Cost New $253,631
Physical Depreciation (% Bad) A 34%
Depreciated Value $167,396
Economic Depreciation (% Bad) 0
Functional Depreciation (% Bad) 0
Total Depreciated Value $167,396
Market Area Factor 1.00
Building Value $167,396
Misc Improvements Value $21,305
Total Improvement Value $188,701

Assessed Land Value $14,808
   
Assessed Total Value $278,000



Addition Summary 
StoryTypeCodeArea
1.00 OPEN PORCH FIN OPF 130
1.00 GARAGE FINISH GRF 506
1.00 UTILITY UNFIN UTU 28
1.00 WOOD DECK WDK 192
 
Other Improvements 
UnitsDescriptionItemCodeYear% BadValue
12x16 DIMENSIONS UTILITY FRAME WITH CONCRETE FLOOR 1983 65 2619
16x8 DIMENSIONS SHELTER 1996 65 345
30x31 DIMENSIONS WORK SHOP 2008 34 18341
 


Building Sketch
Photograph
Building Sketch Building Photo
(Click sketch for bigger image)