Cumberland County
Building Summary

Data last updated on: 4/19/2026     Ownership current as of: 4/6/2026     Tax Year: 2026
REID 9487224694000

PIN # 9487-22-4694

Location Address Property Description
5113 TROPHY CT HUNTERS CROSSING LO:52 SE:01 PL:0114-0158
   
Property Owner Owner's Mailing Address
PIERCE, WILLIAM DONNELL
13325 NAYLORS BLUE CT
CHESTER VA 23836
Parcel
Buildings
Misc Improvements
Land
Deeds
Documents
Notes
Sales
Sales Comparison
Photos
Building Location Address
5113 TROPHY CT
Building Description
R1-SINGLE-FAMILY-RES
Card   of  1
Bldg Type R1-SINGLE-FAMILY-RES
Units 0
Living Area (SQFT) 1956
Number of Stories 1.00
Style 000002-STYLE
Foundation G-PIERS-W/CNTFWL
Frame CONSTANT
Exterior 04-VINYL-SIDING
Const Type
Heating M-07&S-02
Air Cond AC-Y
Plumbing Baths (Full):   2
Baths (Half):   0
Extra Fixtures:   3
Total Plumbing Fixtures:   9 
Bedrooms 4
Roof Cover 03-COMP SHINGLE
Roof Type 02-GABLE
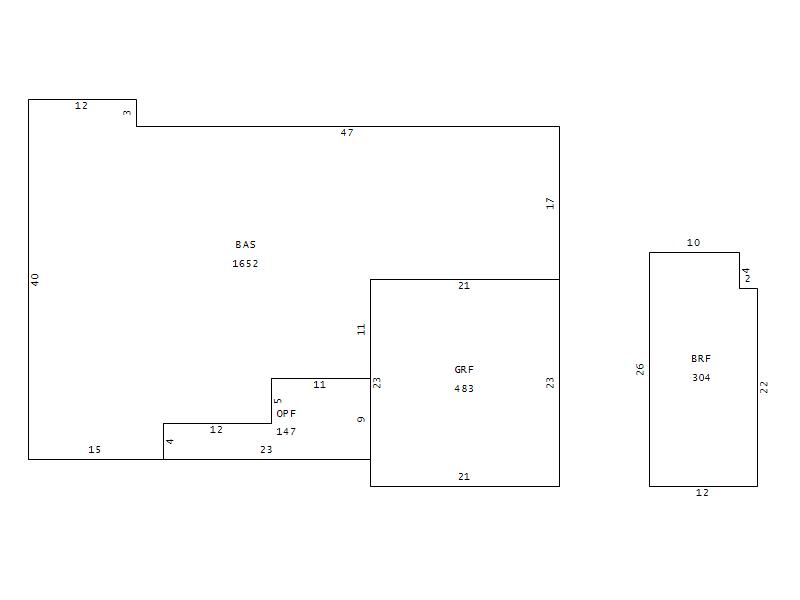
Main Body (SQFT) 1652
Year Built 2006
Additions 3
Effective Year 2006
Remodeled 0
Interior Adj.
Other Features
Building Total & Improvement Details

Grade 370 108%
Percentage Complete 100
Total Adjusted Replacement Cost New $240,332
Physical Depreciation (% Bad) A 18%
Depreciated Value $197,072
Economic Depreciation (% Bad) 0
Functional Depreciation (% Bad) 0
Total Depreciated Value $197,072
Market Area Factor 1.00
Building Value $197,072
Misc Improvements Value $419
Total Improvement Value $197,491

Assessed Land Value $45,000
   
Assessed Total Value $288,500



Addition Summary 
StoryTypeCodeArea
1.00 GARAGE FINISH GRF 483
1.00 OPEN PORCH FIN OPF 147
1.00 BONUS RM FINIS BRF 304
 
Other Improvements 
UnitsDescriptionItemCodeYear% BadValue
12x13 DIMENSIONS CONCRETE PATIO 2006 65 419
 


Building Sketch
Photograph
Building Sketch Building Photo
(Click sketch for bigger image)