Cumberland County
Building Summary

Data last updated on: 4/19/2026     Ownership current as of: 4/6/2026     Tax Year: 2026
REID 9487234033000

PIN # 9487-23-4033

Location Address Property Description
9023 GROUSE RUN LN HUNTERS CROSSING LO:36 SE:02 PL:0115-0146
   
Property Owner Owner's Mailing Address
HICKS, MUSTAFA;HICKS, KAMIRRA
6409 WAVERLY CT
FAYETTEVILLE NC 28304
Parcel
Buildings
Misc Improvements
Land
Deeds
Documents
Notes
Sales
Sales Comparison
Photos
Building Location Address
9023 GROUSE RUN LN
Building Description
R1-SINGLE-FAMILY-RES
Card   of  1
Bldg Type R1-SINGLE-FAMILY-RES
Units 0
Living Area (SQFT) 2095
Number of Stories 2.00
Style 000002-STYLE
Foundation G-PIERS-W/CNTFWL
Frame CONSTANT
Exterior 04-VINYL-SIDING
Const Type
Heating M-07&S-02
Air Cond AC-Y
Plumbing Baths (Full):   2
Baths (Half):   1
Extra Fixtures:   2
Total Plumbing Fixtures:   10 
Bedrooms 3
Roof Cover 03-COMP SHINGLE
Roof Type 05-HIP
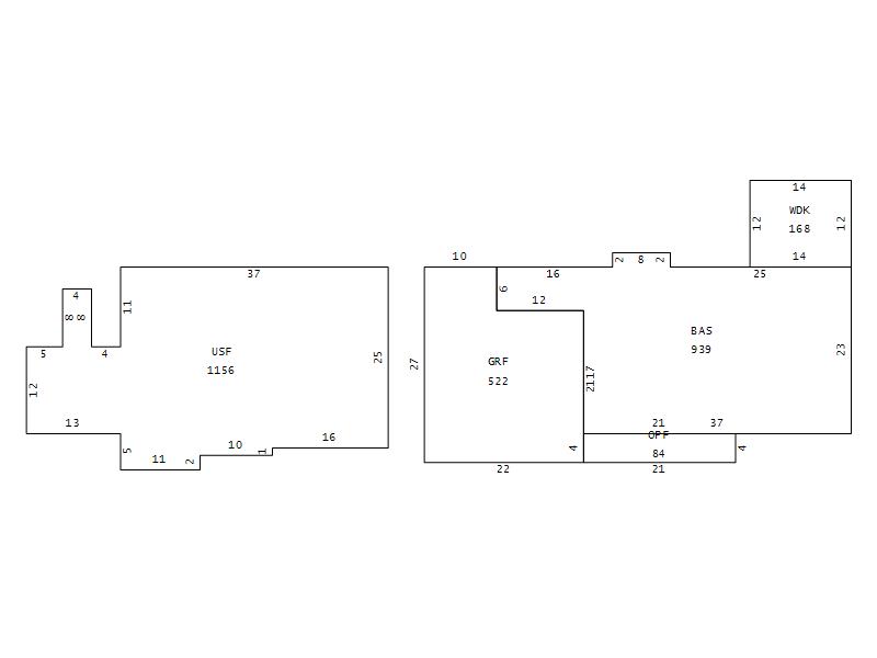
Main Body (SQFT) 939
Year Built 2006
Additions 4
Effective Year 2006
Remodeled 0
Interior Adj.
Other Features
Building Total & Improvement Details

Grade 370 108%
Percentage Complete 100
Total Adjusted Replacement Cost New $259,747
Physical Depreciation (% Bad) A 18%
Depreciated Value $212,993
Economic Depreciation (% Bad) 0
Functional Depreciation (% Bad) 0
Total Depreciated Value $212,993
Market Area Factor 1.00
Building Value $212,993
Misc Improvements Value
Total Improvement Value $212,993

Assessed Land Value $45,000
   
Assessed Total Value $299,100



Addition Summary 
StoryTypeCodeArea
1.00 WOOD DECK WDK 168
1.00 OPEN PORCH FIN OPF 84
1.00 GARAGE FINISH GRF 522
1.00 UPPER STY FIN USF 1156
 
Other Improvements 
 


Building Sketch
Photograph
Building Sketch Building Photo
(Click sketch for bigger image)