Cumberland County
Building Summary

Data last updated on: 4/19/2026     Ownership current as of: 4/6/2026     Tax Year: 2026
REID 9487310819000

PIN # 9487-31-0819

Location Address Property Description
8801 GROUSE RUN LN HUNTERS CROSSING LO:13 SE:01 PL:0094-0056
   
Property Owner Owner's Mailing Address
BARNES, SHATIA NICOLE
8801 GROUSE RUN LANE
FAYETTEVILLE NC 28314
Parcel
Buildings
Misc Improvements
Land
Deeds
Documents
Notes
Sales
Sales Comparison
Photos
Building Location Address
8801 GROUSE RUN LN
Building Description
R1-SINGLE-FAMILY-RES
Card   of  1
Bldg Type R1-SINGLE-FAMILY-RES
Units 0
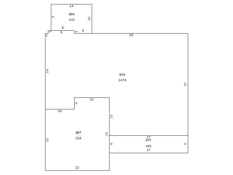
Living Area (SQFT) 1478
Number of Stories 1.00
Style 000002-STYLE
Foundation G-PIERS-W/CNTFWL
Frame CONSTANT
Exterior 11-BRICK-VENEER
Const Type
Heating M-07&S-01
Air Cond AC-Y
Plumbing Baths (Full):   2
Baths (Half):   0
Extra Fixtures:   1
Total Plumbing Fixtures:   7 
Bedrooms 3
Floor 11-CARPET-COMB
Roof Cover 03-COMP SHINGLE
Roof Type 02-GABLE
Main Body (SQFT) 1478
Year Built 1999
Additions 3
Effective Year 1999
Remodeled 0
Interior Adj.
Other Features
Building Total & Improvement Details

Grade 370 108%
Percentage Complete 100
Total Adjusted Replacement Cost New $216,179
Physical Depreciation (% Bad) A 22%
Depreciated Value $168,620
Economic Depreciation (% Bad) 0
Functional Depreciation (% Bad) 0
Total Depreciated Value $168,620
Market Area Factor 1.00
Building Value $168,620
Misc Improvements Value
Total Improvement Value $168,620

Assessed Land Value $45,000
   
Assessed Total Value $236,200



Addition Summary 
StoryTypeCodeArea
1.00 WOOD DECK WDK 132
1.00 OPEN PORCH FIN OPF 162
1.00 GARAGE FINISH GRF 510
 
Other Improvements 
 


Building Sketch
Photograph
Building Sketch Building Photo
(Click sketch for bigger image)