Cumberland County
Building Summary

Data last updated on: 4/19/2026     Ownership current as of: 4/6/2026     Tax Year: 2026
REID 9487314854000

PIN # 9487-31-4854

Location Address Property Description
8736 GROUSE RUN LN HUNTERS CROSSING LO:56 SE:01 PL:0094-0056
   
Property Owner Owner's Mailing Address
CHAPPLE, NICHOLAS
8736 GROUSE RUN LANE
FAYETTEVILLE NC 28314
Parcel
Buildings
Misc Improvements
Land
Deeds
Documents
Notes
Sales
Sales Comparison
Photos
Building Location Address
8736 GROUSE RUN LN
Building Description
R1-SINGLE-FAMILY-RES
Card   of  1
Bldg Type R1-SINGLE-FAMILY-RES
Units 0
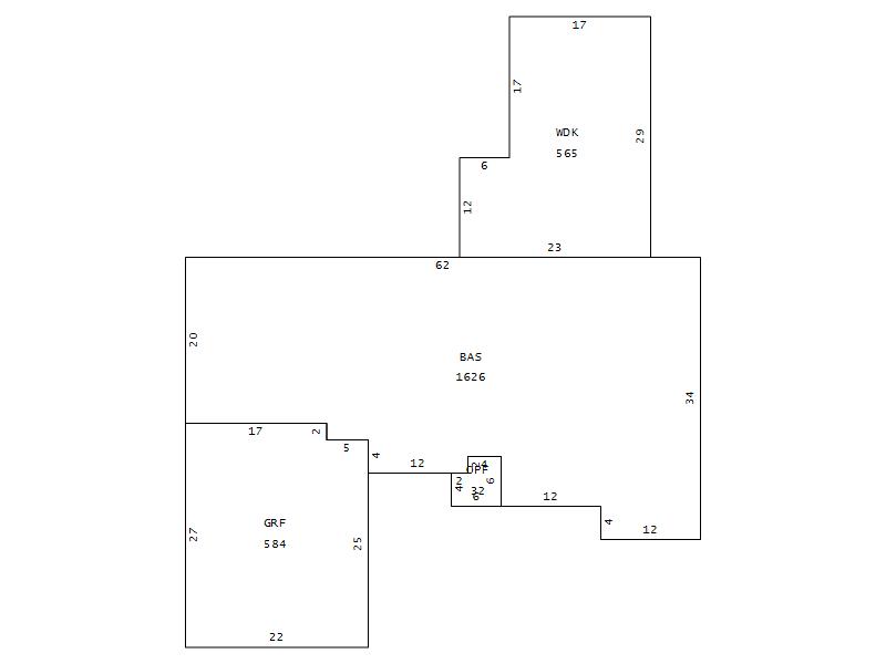
Living Area (SQFT) 1626
Number of Stories 1.00
Style 000002-STYLE
Foundation G-PIERS-W/CNTFWL
Frame CONSTANT
Exterior 12-BRICK/WOOD
Const Type
Heating M-07&S-01
Air Cond AC-Y
Plumbing Baths (Full):   2
Baths (Half):   0
Extra Fixtures:   0
Total Plumbing Fixtures:   6 
Bedrooms 4
Floor 11-CARPET-COMB
Roof Cover 03-COMP SHINGLE
Roof Type 02-GABLE
Main Body (SQFT) 1626
Year Built 1997
Additions 3
Effective Year 1997
Remodeled 0
Interior Adj.
Other Features
Building Total & Improvement Details

Grade 370 108%
Percentage Complete 100
Total Adjusted Replacement Cost New $232,285
Physical Depreciation (% Bad) A 23%
Depreciated Value $178,859
Economic Depreciation (% Bad) 0
Functional Depreciation (% Bad) 0
Total Depreciated Value $178,859
Market Area Factor 1.00
Building Value $178,859
Misc Improvements Value $14,505
Total Improvement Value $193,364

Assessed Land Value $45,000
   
Assessed Total Value $274,900



Addition Summary 
StoryTypeCodeArea
1.00 WOOD DECK WDK 565
1.00 OPEN PORCH FIN OPF 32
1.00 GARAGE FINISH GRF 584
 
Other Improvements 
UnitsDescriptionItemCodeYear% BadValue
1 UNITS SWIMMING POOL 2013 37 14505
 


Building Sketch
Photograph
Building Sketch Building Photo
(Click sketch for bigger image)