Cumberland County
Building Summary

Data last updated on: 1/30/2026     Ownership current as of: 1/20/2026     Tax Year: 2026
REID 9487392780000

PIN # 9487-39-2780

Location Address Property Description
7341 PEBBLEBROOK DR MIDDLE CREEK LO:183 SE:05 PL:0061-0042
   
Property Owner Owner's Mailing Address
SMITH, DAVID R;CHRISTY, REBECCA JULIET
7341 PEBBLEBROOK DRIVE
FAYETTEVILLE NC 28314
Parcel
Buildings
Misc Improvements
Land
Deeds
Documents
Notes
Sales
Sales Comparison
Photos
Building Location Address
7341 PEBBLEBROOK DR
Building Description
R1-SINGLE-FAMILY-RES
Card   of  1
Bldg Type R1-SINGLE-FAMILY-RES
Units 0
Living Area (SQFT) 1213
Number of Stories 1.00
Style 000002-STYLE
Foundation G-PIERS-W/CNTFWL
Frame CONSTANT
Exterior 12-BRICK/WOOD
Const Type
Heating M-07&S-01
Air Cond AC-Y
Plumbing Baths (Full):   2
Baths (Half):   0
Extra Fixtures:   0
Total Plumbing Fixtures:   6 
Bedrooms 3
Floor 11-CARPET-COMB
Roof Cover 03-COMP SHINGLE
Roof Type 02-GABLE
Main Body (SQFT) 1213
Year Built 1987
Additions 2
Effective Year 1987
Remodeled 0
Interior Adj.
Other Features
Building Total & Improvement Details

Grade 350 100%
Percentage Complete 100
Total Adjusted Replacement Cost New $159,320
Physical Depreciation (% Bad) A 27%
Depreciated Value $116,304
Economic Depreciation (% Bad) 0
Functional Depreciation (% Bad) 0
Total Depreciated Value $116,304
Market Area Factor 1.00
Building Value $116,304
Misc Improvements Value $538
Total Improvement Value $116,842

Assessed Land Value $35,000
   
Assessed Total Value $206,300



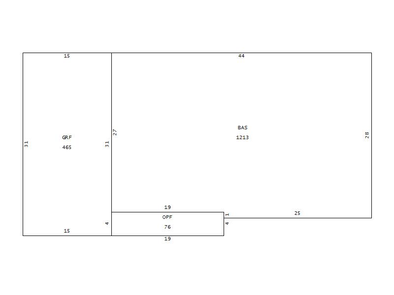
Addition Summary 
StoryTypeCodeArea
1.00 GARAGE FINISH GRF 465
1.00 OPEN PORCH FIN OPF 76
 
Other Improvements 
UnitsDescriptionItemCodeYear% BadValue
14x12 DIMENSIONS CONCRETE PATIO 1987 65 451
4x4 DIMENSIONS STOOP 1987 65 87
 


Building Sketch
Photograph
Building Sketch Building Photo
(Click sketch for bigger image)