Cumberland County
Building Summary

Data last updated on: 1/30/2026     Ownership current as of: 1/20/2026     Tax Year: 2026
REID 9487393877000

PIN # 9487-39-3877

Location Address Property Description
7349 PEBBLEBROOK DR MIDDLE CREEK LO:185 PH:00 SE:05 PL:0061-0042
   
Property Owner Owner's Mailing Address
DICKEY, ELEANOR
7349 PEBBLEBROOK DR
FAYETTEVILLE NC 28314
Parcel
Buildings
Misc Improvements
Land
Deeds
Documents
Notes
Sales
Sales Comparison
Photos
Building Location Address
7349 PEBBLEBROOK DR
Building Description
R1-SINGLE-FAMILY-RES
Card   of  1
Bldg Type R1-SINGLE-FAMILY-RES
Units 0
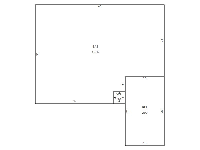
Living Area (SQFT) 1286
Number of Stories 1.00
Style 000002-STYLE
Foundation S-SLAB
Frame CONSTANT
Exterior 12-BRICK/WOOD
Const Type
Heating M-07&S-01
Air Cond AC-Y
Plumbing Baths (Full):   2
Baths (Half):   0
Extra Fixtures:   0
Total Plumbing Fixtures:   6 
Bedrooms 3
Floor 11-CARPET-COMB
Roof Cover 03-COMP SHINGLE
Roof Type 02-GABLE
Main Body (SQFT) 1286
Year Built 1987
Additions 2
Effective Year 1987
Remodeled 0
Interior Adj.
Other Features
Building Total & Improvement Details

Grade 350 100%
Percentage Complete 100
Total Adjusted Replacement Cost New $155,385
Physical Depreciation (% Bad) A 27%
Depreciated Value $113,431
Economic Depreciation (% Bad) 0
Functional Depreciation (% Bad) 0
Total Depreciated Value $113,431
Market Area Factor 1.00
Building Value $113,431
Misc Improvements Value $268
Total Improvement Value $113,699

Assessed Land Value $35,000
   
Assessed Total Value $204,300



Addition Summary 
StoryTypeCodeArea
1.00 GARAGE FINISH GRF 299
1.00 OPEN PORCH FIN OPF 16
 
Other Improvements 
UnitsDescriptionItemCodeYear% BadValue
10x10 DIMENSIONS CONCRETE PATIO 1987 65 268
 


Building Sketch
Photograph
Building Sketch Building Photo
(Click sketch for bigger image)