Cumberland County
Building Summary

Data last updated on: 4/19/2026     Ownership current as of: 4/6/2026     Tax Year: 2026
REID 9487436007000

PIN # 9487-43-6007

Location Address Property Description
8424 ENGLISH SADDLE DR HUNTERS CROSSING LO:81 SE:01 PL:0094-0056
   
Property Owner Owner's Mailing Address
MEANS, DURRELL G
8424 ENGLISH SADDLE DR
FAYETTEVILLE NC 28314
Parcel
Buildings
Misc Improvements
Land
Deeds
Documents
Notes
Sales
Sales Comparison
Photos
Building Location Address
8424 ENGLISH SADDLE DR
Building Description
R1-SINGLE-FAMILY-RES
Card   of  1
Bldg Type R1-SINGLE-FAMILY-RES
Units 0
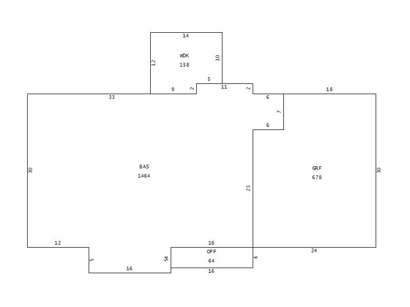
Living Area (SQFT) 1464
Number of Stories 1.00
Style 000002-STYLE
Foundation G-PIERS-W/CNTFWL
Frame CONSTANT
Exterior 12-BRICK/WOOD
Const Type
Heating M-07&S-01
Air Cond AC-Y
Plumbing Baths (Full):   2
Baths (Half):   0
Extra Fixtures:   0
Total Plumbing Fixtures:   6 
Bedrooms 3
Floor 11-CARPET-COMB
Roof Cover 03-COMP SHINGLE
Roof Type 02-GABLE
Main Body (SQFT) 1464
Year Built 1999
Additions 3
Effective Year 1999
Remodeled 0
Interior Adj.
Other Features
Building Total & Improvement Details

Grade 370 108%
Percentage Complete 100
Total Adjusted Replacement Cost New $211,322
Physical Depreciation (% Bad) A 22%
Depreciated Value $164,831
Economic Depreciation (% Bad) 0
Functional Depreciation (% Bad) 0
Total Depreciated Value $164,831
Market Area Factor 1.00
Building Value $164,831
Misc Improvements Value
Total Improvement Value $164,831

Assessed Land Value $45,000
   
Assessed Total Value $249,700



Addition Summary 
StoryTypeCodeArea
1.00 GARAGE FINISH GRF 678
1.00 OPEN PORCH FIN OPF 64
1.00 WOOD DECK WDK 158
 
Other Improvements 
 


Building Sketch
Photograph
Building Sketch Building Photo
(Click sketch for bigger image)