Cumberland County
Building Summary

Data last updated on: 4/19/2026     Ownership current as of: 4/6/2026     Tax Year: 2026
REID 9487539130000

PIN # 9487-53-9130

Location Address Property Description
8220 FRENCHORN LN HUNTERS CROSSING SOUTH LO:61 PH:2 SE:2 PL:0116-0065
   
Property Owner Owner's Mailing Address
NGUYEN, VAN THANH;PHAN, THI PHUONG;NGUYEN, QUOC HUY
8220 FRENCHORN LANE
FAYETTEVILLE NC 28314
Parcel
Buildings
Misc Improvements
Land
Deeds
Documents
Notes
Sales
Sales Comparison
Photos
Building Location Address
8220 FRENCHORN LN
Building Description
R1-SINGLE-FAMILY-RES
Card   of  1
Bldg Type R1-SINGLE-FAMILY-RES
Units 0
Living Area (SQFT) 1815
Number of Stories 1.00
Style 000002-STYLE
Foundation S-SLAB
Frame CONSTANT
Exterior 04-VINYL-SIDING
Const Type
Heating M-07&S-04
Air Cond AC-Y
Plumbing Baths (Full):   2
Baths (Half):   0
Extra Fixtures:   2
Total Plumbing Fixtures:   8 
Bedrooms 3
Roof Cover 03-COMP SHINGLE
Roof Type 02-GABLE
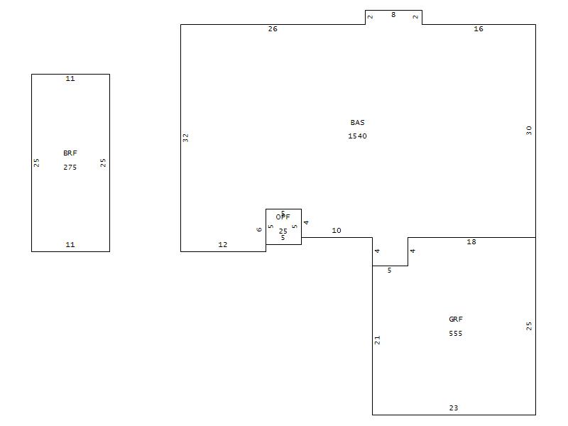
Main Body (SQFT) 1540
Year Built 2006
Additions 3
Effective Year 2006
Remodeled 0
Interior Adj.
Other Features
Building Total & Improvement Details

Grade 370 108%
Percentage Complete 100
Total Adjusted Replacement Cost New $221,442
Physical Depreciation (% Bad) A 18%
Depreciated Value $181,582
Economic Depreciation (% Bad) 0
Functional Depreciation (% Bad) 0
Total Depreciated Value $181,582
Market Area Factor 1.00
Building Value $181,582
Misc Improvements Value $387
Total Improvement Value $181,969

Assessed Land Value $45,000
   
Assessed Total Value $275,800



Addition Summary 
StoryTypeCodeArea
1.00 GARAGE FINISH GRF 555
1.00 OPEN PORCH FIN OPF 25
1.00 BONUS RM FINIS BRF 275
 
Other Improvements 
UnitsDescriptionItemCodeYear% BadValue
12x12 DIMENSIONS CONCRETE PATIO 2006 65 387
 


Building Sketch
Photograph
Building Sketch Building Photo
(Click sketch for bigger image)