Cumberland County
Building Summary

Data last updated on: 1/30/2026     Ownership current as of: 1/20/2026     Tax Year: 2026
REID 9488425239000

PIN # 9488-42-5239

Location Address Property Description
7165 DAYSPRING DR VILLAGE COMMONS OF MIDDLECREEK LO:168 SE:02 PL:0081-0162
   
Property Owner Owner's Mailing Address
KOCH, ANASTACIA;KOCH, TRISTEN ERIC
7165 DAYSPRING DRIVE
FAYETTEVILLE NC 28314

Value subject to change, property assessment under review

Parcel
Buildings
Misc Improvements
Land
Deeds
Documents
Notes
Sales
Photos
Building Location Address
7165 DAYSPRING DR
Building Description
R1-SINGLE-FAMILY-RES
Card   of  1
Bldg Type R1-SINGLE-FAMILY-RES
Units 0
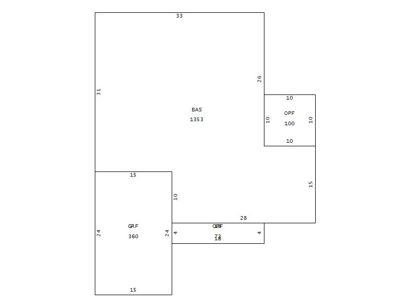
Living Area (SQFT) 1353
Number of Stories 1.00
Style 000002-STYLE
Foundation G-PIERS-W/CNTFWL
Frame CONSTANT
Exterior 11-BRICK-VENEER
Const Type
Heating M-07&S-02
Air Cond AC-Y
Plumbing Baths (Full):   2
Baths (Half):   0
Extra Fixtures:   0
Total Plumbing Fixtures:   6 
Bedrooms 3
Floor 11-CARPET-COMB
Roof Cover 03-COMP SHINGLE
Roof Type 02-GABLE
Main Body (SQFT) 1353
Year Built 1993
Additions 3
Effective Year 1993
Remodeled 0
Interior Adj.
Other Features
Building Total & Improvement Details

Grade 350 100%
Percentage Complete 100
Total Adjusted Replacement Cost New
Physical Depreciation (% Bad) A 24%
Depreciated Value
Economic Depreciation (% Bad) 0
Functional Depreciation (% Bad) 0
Total Depreciated Value
Market Area Factor 1.00
Building Value
Misc Improvements Value
Total Improvement Value

Assessed Land Value
   
Assessed Total Value



Addition Summary 
StoryTypeCodeArea
1.00 OPEN PORCH FIN OPF 100
1.00 GARAGE FINISH GRF 360
1.00 OPEN PORCH FIN OPF 72
 
Other Improvements 
 


Building Sketch
Photograph
Building Sketch Building Photo
(Click sketch for bigger image)