Cumberland County
Building Summary

Data last updated on: 1/30/2026     Ownership current as of: 1/20/2026     Tax Year: 2026
REID 9488527197000

PIN # 9488-52-7197

Location Address Property Description
663 DAHARAN DR VILLAGE COMMONS OF MIDDLECREEK LO:58 SE:02 PL:0081-0162
   
Property Owner Owner's Mailing Address
LIVINGSTON, GRIFFIN
663 DAHARAN DR
FAYETTEVILLE NC 28314
Parcel
Buildings
Misc Improvements
Land
Deeds
Documents
Notes
Sales
Sales Comparison
Photos
Building Location Address
663 DAHARAN DR
Building Description
R1-SINGLE-FAMILY-RES
Card   of  1
Bldg Type R1-SINGLE-FAMILY-RES
Units 0
Living Area (SQFT) 1848
Number of Stories 1.75
Style 000002-STYLE
Foundation C-COMBO/SLAB/CSP
Frame CONSTANT
Exterior 12-BRICK/WOOD
Const Type
Heating M-07&S-02
Air Cond AC-Y
Plumbing Baths (Full):   3
Baths (Half):   0
Extra Fixtures:   0
Total Plumbing Fixtures:   9 
Bedrooms 4
Floor 11-CARPET-COMB
Roof Cover 03-COMP SHINGLE
Roof Type 02-GABLE
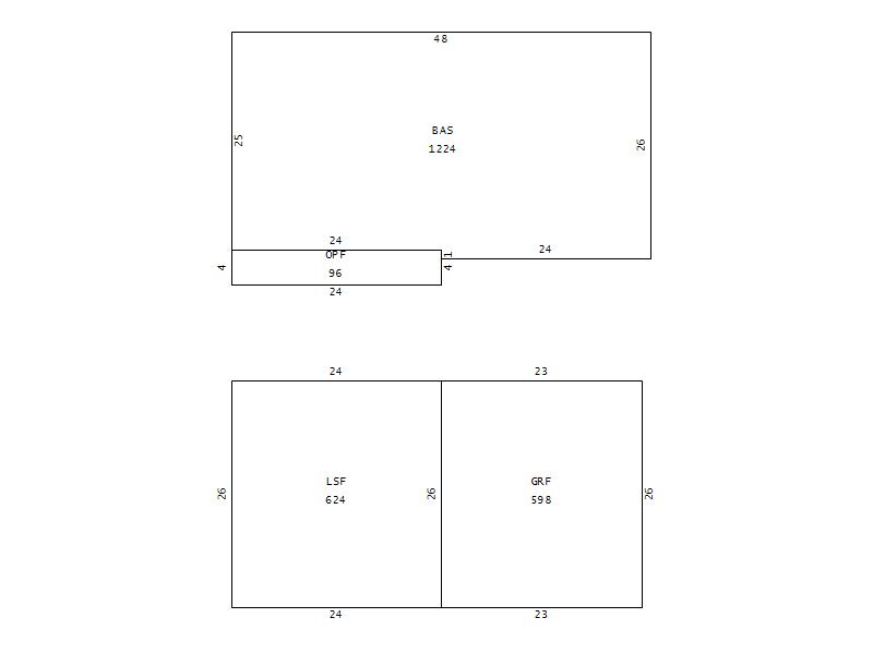
Main Body (SQFT) 1224
Year Built 1993
Additions 3
Effective Year 1993
Remodeled 2014
Interior Adj.
Other Features
Building Total & Improvement Details

Grade 350 100%
Percentage Complete 100
Total Adjusted Replacement Cost New $227,773
Physical Depreciation (% Bad) A 24%
Depreciated Value $173,107
Economic Depreciation (% Bad) 0
Functional Depreciation (% Bad) 0
Total Depreciated Value $173,107
Market Area Factor 1.00
Building Value $173,107
Misc Improvements Value $1,736
Total Improvement Value $174,843

Assessed Land Value $35,000
   
Assessed Total Value $262,900



Addition Summary 
StoryTypeCodeArea
1.00 OPEN PORCH FIN OPF 96
1.00 LOWER STY FIN LSF 624
1.00 GARAGE FINISH GRF 598
 
Other Improvements 
UnitsDescriptionItemCodeYear% BadValue
12x12 DIMENSIONS CONCRETE PATIO 1993 65 387
10x12 DIMENSIONS UTILITY FRAME 1997 65 1349
 


Building Sketch
Photograph
Building Sketch Building Photo
(Click sketch for bigger image)