Cumberland County
Building Summary

Data last updated on: 2/1/2026     Ownership current as of: 1/20/2026     Tax Year: 2026
REID 9495857447000

PIN # 9495-85-7447

Location Address Property Description
6216 LAKEWAY DR ARRAN LAKES WEST LO:964 SE:15 PL:0072-0108
   
Property Owner Owner's Mailing Address
MCCOURTNEY, JEFFERY SCOTT;MCCOURTNEY, SHELLY E
6216 LAKEWAY DRIVE
FAYETTEVILLE NC 28306
Parcel
Buildings
Misc Improvements
Land
Deeds
Documents
Notes
Sales
Sales Comparison
Photos
Building Location Address
6216 LAKEWAY DR
Building Description
R1-SINGLE-FAMILY-RES
Card   of  1
Bldg Type R1-SINGLE-FAMILY-RES
Units 0
Living Area (SQFT) 2402
Number of Stories 2.00
Style 000002-STYLE
Foundation G-PIERS-W/CNTFWL
Frame CONSTANT
Exterior 03-MAS/ABST/OLD-WOOD
Const Type
Heating M-07&S-02
Air Cond AC-Y
Plumbing Baths (Full):   2
Baths (Half):   1
Extra Fixtures:   0
Total Plumbing Fixtures:   8 
Bedrooms 3
Floor 11-CARPET-COMB
Roof Cover 03-COMP SHINGLE
Roof Type 02-GABLE
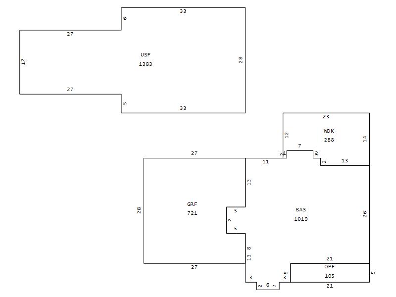
Main Body (SQFT) 1019
Year Built 1990
Additions 4
Effective Year 1990
Remodeled 0
Interior Adj.
Other Features
Building Total & Improvement Details

Grade 350 100%
Percentage Complete 100
Total Adjusted Replacement Cost New $279,150
Physical Depreciation (% Bad) A 25%
Depreciated Value $209,362
Economic Depreciation (% Bad) 0
Functional Depreciation (% Bad) 0
Total Depreciated Value $209,362
Market Area Factor 1.00
Building Value $209,362
Misc Improvements Value
Total Improvement Value $209,362

Assessed Land Value $35,000
   
Assessed Total Value $321,600



Addition Summary 
StoryTypeCodeArea
1.00 WOOD DECK WDK 288
1.00 OPEN PORCH FIN OPF 105
1.00 GARAGE FINISH GRF 721
1.00 UPPER STY FIN USF 1383
 
Other Improvements 
 


Building Sketch
Photograph
Building Sketch Building Photo
(Click sketch for bigger image)