Cumberland County
Building Summary

Data last updated on: 2/1/2026     Ownership current as of: 1/20/2026     Tax Year: 2026
REID 9495879072000

PIN # 9495-87-9072

Location Address Property Description
2295 DOCKWOOD CT ARRAN LAKES WEST LO:950 SE:14 PL:0066-0081
   
Property Owner Owner's Mailing Address
RUSSELL, LAQUISHA
2295 DOCKWOOD COURT
FAYETTEVILLE NC 28306
Parcel
Buildings
Misc Improvements
Land
Deeds
Documents
Notes
Sales
Sales Comparison
Photos
Building Location Address
2295 DOCKWOOD CT
Building Description
R1-SINGLE-FAMILY-RES
Card   of  1
Bldg Type R1-SINGLE-FAMILY-RES
Units 0
Living Area (SQFT) 1800
Number of Stories 2.00
Style 000002-STYLE
Foundation G-PIERS-W/CNTFWL
Frame CONSTANT
Exterior 03-MAS/ABST/OLD-WOOD
Const Type
Heating M-08&S-01
Air Cond AC-Y
Plumbing Baths (Full):   2
Baths (Half):   1
Extra Fixtures:   0
Total Plumbing Fixtures:   8 
Bedrooms 3
Floor 11-CARPET-COMB
Roof Cover 03-COMP SHINGLE
Roof Type 02-GABLE
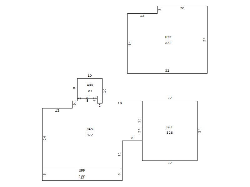
Main Body (SQFT) 972
Year Built 1988
Additions 4
Effective Year 1988
Remodeled 0
Interior Adj.
Other Features
Building Total & Improvement Details

Grade 350 100%
Percentage Complete 100
Total Adjusted Replacement Cost New $216,637
Physical Depreciation (% Bad) A 26%
Depreciated Value $160,311
Economic Depreciation (% Bad) 0
Functional Depreciation (% Bad) 0
Total Depreciated Value $160,311
Market Area Factor 1.00
Building Value $160,311
Misc Improvements Value $1,541
Total Improvement Value $161,852

Assessed Land Value $35,000
   
Assessed Total Value $272,200



Addition Summary 
StoryTypeCodeArea
1.00 GARAGE FINISH GRF 528
1.00 OPEN PORCH FIN OPF 160
1.00 WOOD DECK WDK 84
1.00 UPPER STY FIN USF 828
 
Other Improvements 
UnitsDescriptionItemCodeYear% BadValue
12x14 DIMENSIONS CONCRETE PATIO 1988 65 451
8x8 DIMENSIONS UTILITY FRAME 2009 47 1090
 


Building Sketch
Photograph
Building Sketch Building Photo
(Click sketch for bigger image)