Cumberland County
Building Summary

Data last updated on: 11/13/2025     Ownership current as of: 11/3/2025     Tax Year: 2025
REID 9496553572000

PIN # 9496-55-3572

Location Address Property Description
2008 GREENDALE DR WELLS PLACE LO:14 SE:09 PL:0056-0009
   
Property Owner Owner's Mailing Address
TRAN, THUY THI
2008 GREENDALE DR
FAYETTEVILLE NC 28304
Parcel
Buildings
Misc Improvements
Land
Deeds
Documents
Notes
Sales
Sales Comparison
Photos
Building Location Address
2008 GREENDALE DR
Building Description
R1-SINGLE-FAMILY-RES
Card   of  1
Bldg Type R1-SINGLE-FAMILY-RES
Units 0
Living Area (SQFT) 2361
Number of Stories 2.00
Style 000002-STYLE
Foundation G-PIERS-W/CNTFWL
Frame CONSTANT
Exterior 05-DELUX-WOOD-SIDING
Const Type
Heating M-07&S-01
Air Cond AC-Y
Plumbing Baths (Full):   2
Baths (Half):   1
Extra Fixtures:   0
Total Plumbing Fixtures:   8 
Bedrooms 4
Floor 11-CARPET-COMB
Roof Cover 03-COMP SHINGLE
Roof Type 02-GABLE
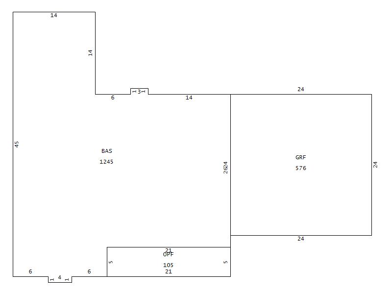
Main Body (SQFT) 1245
Year Built 1987
Additions 3
Effective Year 1987
Remodeled 0
Interior Adj.
Other Features
Building Total & Improvement Details

Grade 450 126%
Percentage Complete 100
Total Adjusted Replacement Cost New $332,524
Physical Depreciation (% Bad) A 23%
Depreciated Value $256,043
Economic Depreciation (% Bad) 0
Functional Depreciation (% Bad) 0
Total Depreciated Value $256,043
Market Area Factor 1.00
Building Value $256,043
Misc Improvements Value $30,668
Total Improvement Value $286,711

Assessed Land Value $52,000
   
Assessed Total Value $357,400



Addition Summary 
StoryTypeCodeArea
1.00 GARAGE FINISH GRF 576
1.00 OPEN PORCH FIN OPF 105
1.00 UPPER STY FIN USF 1116
 
Other Improvements 
UnitsDescriptionItemCodeYear% BadValue
37x24 DIMENSIONS GARAGE FRAME FINISHED W/HALF UPPER STORY FINISHED 2002 42 26526
15X22 DIMENSIONS CANOPY OVER PATIO 2008 65 1731
17X22 DIMENSIONS CANOPY OVER PATIO 2010 57 2411
 


Building Sketch
Photograph
Building Sketch Building Photo
(Click sketch for bigger image)