Cumberland County
Building Summary

Data last updated on: 1/31/2026     Ownership current as of: 1/20/2026     Tax Year: 2026
REID 9496605360000

PIN # 9496-60-5360

Location Address Property Description
6529 GREEN MEADOW RD LAKE POINT PLACE LO:118 SE:3-PT1 PL:0052-0076
   
Property Owner Owner's Mailing Address
ARAUJO-ANDRADE, RHANDJARA;ANDRADE, LUIZ GUSTAVO GUERRERO
6529 GREEN MEADOW RD
FAYETTEVILLE NC 28304
Parcel
Buildings
Misc Improvements
Land
Deeds
Documents
Notes
Sales
Sales Comparison
Photos
Building Location Address
6529 GREEN MEADOW RD
Building Description
R1-SINGLE-FAMILY-RES
Card   of  1
Bldg Type R1-SINGLE-FAMILY-RES
Units 0
Living Area (SQFT) 1272
Number of Stories 1.00
Style 000002-STYLE
Foundation G-PIERS-W/CNTFWL
Frame CONSTANT
Exterior 05-DELUX-WOOD-SIDING
Const Type
Heating M-07&S-01
Air Cond AC-Y
Plumbing Baths (Full):   2
Baths (Half):   0
Extra Fixtures:   0
Total Plumbing Fixtures:   6 
Bedrooms 3
Floor 11-CARPET-COMB
Roof Cover 03-COMP SHINGLE
Roof Type 02-GABLE
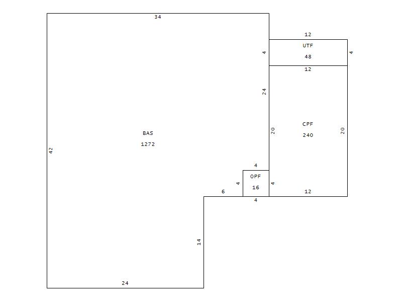
Main Body (SQFT) 1272
Year Built 1986
Additions 3
Effective Year 1993
Remodeled 0
Interior Adj.
Other Features
Building Total & Improvement Details

Grade 350 100%
Percentage Complete 100
Total Adjusted Replacement Cost New $150,409
Physical Depreciation (% Bad) A 24%
Depreciated Value $114,311
Economic Depreciation (% Bad) 0
Functional Depreciation (% Bad) 0
Total Depreciated Value $114,311
Market Area Factor 1.00
Building Value $114,311
Misc Improvements Value $322
Total Improvement Value $114,633

Assessed Land Value $25,000
   
Assessed Total Value $201,800



Addition Summary 
StoryTypeCodeArea
1.00 OPEN PORCH FIN OPF 16
1.00 CARPORT FINISH CPF 240
1.00 UTILITY FIN UTF 48
 
Other Improvements 
UnitsDescriptionItemCodeYear% BadValue
10x12 DIMENSIONS CONCRETE PATIO 1985 65 322
 


Building Sketch
Photograph
Building Sketch Building Photo
(Click sketch for bigger image)